Maison neuve à
Hermes
(60370) Référence :
FBhermes95-0_6
Prix du projet : Maison avec Terrain
prix 227 000 €
- 6 pièces
- 4 chambres
- Surface maison 91 m2
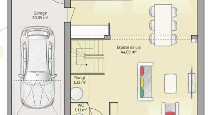
Maison F6 (91 m²) en vente à Hermes
EMPLACEMENT PRIVILÉGIÉ - MAISON 6 PIÈCES NEUVE
En vente : à quelques kilomètres de Beauvais, bénéficiant d'un emplacement privilégié dans Hermes (60370), Maisons France Confort Beauvais vous propose cette maison de 6 pièces de 91 m².
Cette maison compte 2 niveaux. Elle inclut quatre chambres, une cuisine et une salle de bains. La maison est neuve.
Le terrain de la propriété est de 540 m².
Ce bien se trouve dans un quartier convoité. Il y a l'École Élémentaire Elsa Triolet, l'École Maternelle Louis Aragon et l'École Élémentaire Edmond Leveille à moins de 10 minutes à pied. Niveau transports, on trouve la gare Hermes-Berthecourt à proximité. L'autoroute A16 et la nationale N31 sont accessibles à moins de 10 km. Il y a deux tennis, une bibliothèque, une boulangerie, un supermarché, trois boucheries-charcuteries et un bureau de poste à quelques minutes.
Il est à vendre pour la somme de 227 000 €.
Contactez notre agence (BONELLO Fabrice : 06-09-50-50-09) pour tout renseignement sur la maison. Maisons France Confort Beauvais est là pour vous accompagner dans toutes vos démarches.
Mentions légales
Terrain proposé par un partenaire foncier selon disponibilités et autorisation de publicité au prix de 65 000 €. Hors droit d'enregistrement et frais de notaire. Terrain + Maison proposés au prix de 162 000 € (Hors branchements et raccordements, papiers peints, peintures, revêtement de sol dans les chambres. Tarif modifiable sans préavis). Etiquette énergie : A. Différents modèles disponibles pour ce terrain. Assurances et garanties du constructeur (RC professionnelle, décennale, dommage ouvrage, garantie de remboursement de l'acompte, livraison à prix et délai convenu) : https://www.maisons-france-confort.fr/mentions-legales/. HEXAOM Services est enregistré auprès de l'ORIAS en tant que Courtier en financement, Niveau 1, sous le numéro 14001345.Agence Maisons France Confort de Beauvais (60000)
- Téléphone :
- 03 44 04 40 04
- Adressse :
- 42 rue Pierre Jacoby
60000 Beauvais, France
