Maison neuve à
Jablines
(77450) Référence :
AR2258746_1
Prix du projet : Maison avec Terrain
prix 315 000 €
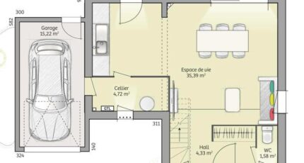
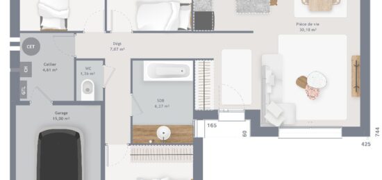
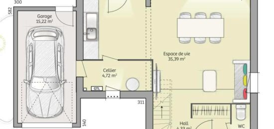
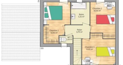
- 5 pièces
- 3 chambres
- Surface maison 90 m2
VENTE : maison T5 (90 m²) à Jablines
MAISON 5 PIÈCES NEUVE - PROCHE DE PARIS
À quelques minutes du Transilien P (gare d'Esbly, 30 min de Paris), nous vous proposons cette maison de 5 pièces de 90 m² et de 334 m² de terrain à vendre à Jablines (77450).
Cette maison possède 2 niveaux. Son intérieur compte trois chambres, une cuisine et une salle de bains. La maison est neuve.
Il y a l'École Élémentaire Jacques-Yves Cousteau à moins de 10 minutes à pied. Niveau transports en commun, on trouve la ligne de RER A (Chessy-Marne-La-Vallée) ainsi que six gares à moins de 10 minutes en voiture. Il y a un commerce à proximité.
Elle est à vendre pour la somme de 315 000 €.
Contactez notre agence (Alan RUBAL : 07-68-78-63-84) pour toute information sur cette maison. Faites de vos projets immobiliers une réalité avec Maisons France Confort Magny-le-Hongre.
Annonce proposée par un Agent Commercial Partenaire.
Mentions légales
Terrain proposé par un partenaire foncier selon disponibilités et autorisation de publicité au prix de 153 000 €. Hors droit d'enregistrement et frais de notaire. Maison proposée, avec un contrat de construction de maison individuelle, dans le cadre de la loi du 19/12/1990, au prix de 162 000 € (Hors branchements et raccordements, papiers peints, peintures, revêtement de sol dans les chambres, qui sont chiffrés dans les travaux qui restent à charge du client. Tarif modifiable sans préavis). Étiquette énergie : A. Différents modèles disponibles pour ce terrain. Assurances et garanties du constructeur comprises (RC professionnelle, décennale, dommage ouvrage).Agence Maisons France Confort de Magny-le-Hongre (77700)
- Téléphone :
- 01 84 80 92 96
- Adressse :
- 11 rue de Courtalin
77700 Magny-le-Hongre, France
