Maison neuve à
Jarzé (49140) Référence : RS2329328_3

Prix du projet : Maison avec Terrain

prix 352 400 €

  • 6 pièces
  • 4 chambres
  • Surface maison 140 m2

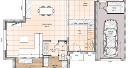
VENTE : maison F6 (140 m²) à Jarzé
MAISON 6 PIÈCES NEUVE - PROCHE D'ANGERS
En vente : située à deux pas d'Angers, nous vous proposons cette maison de 6 pièces de 140 m² à Jarzé (49140).
Cette maison possède 2 niveaux. Son intérieur propose quatre chambres, une cuisine et deux salles de bains. Cette maison est neuve.
Le terrain de la propriété s'étend sur 467 m².
L'École Primaire Publique le Grand Noyer et l'École Primaire Privée Saint Jean sont implantées à moins de 10 minutes à pied. Les autoroutes A11 et A85 sont accessibles à moins de 8 km. Il y a un tennis, une bibliothèque, un commerce, deux boulangeries, une boucherie-charcuterie et une épicerie dans les environs.
Elle est à vendre pour la somme de 352 400 €.
Prenez contact avec notre agence (SALAS Roman : 02-41-77-17-17) pour obtenir de plus amples informations sur cette maison, sur les modalités de vente et sur les démarches à suivre. Concrétisez vos projets immobiliers avec Maisons Bernard Jambert Angers.

Mentions légales

Terrain proposé par un partenaire foncier selon disponibilités et autorisation de publicité au prix de 47 634 €. Hors droit d'enregistrement et frais de notaire. Maison proposée, avec un contrat de construction de maison individuelle, dans le cadre de la loi du 19/12/1990, au prix de 304 766 € (Hors branchements et raccordements, papiers peints, peintures, revêtement de sol dans les chambres, qui sont chiffrés dans les travaux qui restent à charge du client. Tarif modifiable sans préavis). Étiquette énergie : A. Différents modèles disponibles pour ce terrain. Assurances et garanties du constructeur comprises (RC professionnelle, décennale, dommage ouvrage).

Contactez l'agence de Angers

02 41 77 17 17

    * Champs obligatoires

    Vos informations sont traitées par HEXAOM et transmises à un conseiller commercial qui vous contactera afin de répondre à votre demande. Les plans et images présentés sur notre site sont la propriété d’HEXAOM et ne peuvent pas être reproduits sans son accord. Pour retrouver notre politique de protection des données personnelles et exercer vos droits conformément à la « loi informatique et liberté » cliquez-ici.