Maison neuve à
Juziers
(78820) Référence :
MH2295790_1
Prix du projet : Maison avec Terrain
prix 359 000 €
- 6 pièces
- 5 chambres
- Surface maison 114 m2
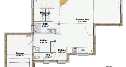
Votre conseiller Maisons France Confort Morgan Houdebine est à votre disposition pour vous accompagner dans votre projet de construction de maison personnalisée. Nouveau! Projet de construction à JUZIERS secteur très prié. Sur ce terrain plat de 570 m2. Maison contemporaine de 4 chambres avec une belle entrée comprenant un vestiaire, grand et lumineux séjour traversant, cuisine ouverte avec un cellier, WC et une chambre. A l'étage, 4 chambres confortables dont une suite parentale avec dressing et salle d'eau, une salle de bain commune et un wc séparé. Nombreux rangement et une belle distribution. Coût total du projet 359000 Euros(Frais de compteurs, de branchements, de raccordements et frais de notaire inclus) contactez votre conseiller Morgan Houdebine au 06/47/37/71/15
Annonce proposée par un Agent Commercial Partenaire.
Mentions légales
Terrain proposé par un partenaire foncier selon disponibilités et autorisation de publicité au prix de 130 900 €. Hors droit d'enregistrement et frais de notaire. Maison proposée, avec un contrat de construction de maison individuelle, dans le cadre de la loi du 19/12/1990, au prix de 228 100 € (Hors branchements et raccordements, papiers peints, peintures, revêtement de sol dans les chambres, qui sont chiffrés dans les travaux qui restent à charge du client. Tarif modifiable sans préavis). Étiquette énergie : A. Différents modèles disponibles pour ce terrain. Assurances et garanties du constructeur comprises (RC professionnelle, décennale, dommage ouvrage).Agence Maisons France Confort de Conflans-Sainte-Honorine (78700)
- Téléphone :
- 01 34 46 20 83
- Adressse :
- 55/57 rue Maurice Berteaux
78700 Conflans-Sainte-Honorine, France
