Maison neuve à
La Celle-sur-Morin
(77515) Référence :
CY2355832_1
Prix du projet : Maison avec Terrain
prix 278 000 €
- 5 pièces
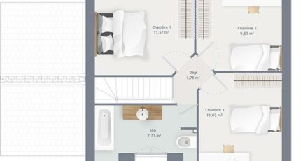
- 3 chambres
- Surface maison 80 m2
VENTE d'une maison F5 (80 m²) à La Celle-sur-Morin
PROCHE GARE - MAISON 5 PIÈCES NEUVE
En vente : à quelques minutes du Transilien P (gare de Guérard-La Celle-sur-Morin, 45 min de Paris), nous sommes heureux de vous présenter cette maison de 5 pièces de 80 m² et de 591 m² de terrain dans La Celle-sur-Morin (77515), proche de la gare. Elle propose trois chambres, une cuisine et une salle de bains.
C'est une maison de 2 niveaux. Elle est neuve.
L'École Primaire des Arches se trouve à moins de 10 minutes à pied. Niveau transports en commun, il y a sept gares à moins de 10 minutes en voiture. On trouve une boulangerie, un commerce et une épicerie à quelques minutes du logement.
Son prix de vente est de 278 000 €.
Contactez Cedric YAHIAOUI (06-66-57-00-63) pour plus de renseignements sur la maison. Faites de vos projets immobiliers une réalité avec Maisons France Confort Magny-le-Hongre.
Annonce proposée par un Agent Commercial Partenaire.
Mentions légales
Terrain proposé par un partenaire foncier selon disponibilités et autorisation de publicité au prix de 89 500 €. Hors droit d'enregistrement et frais de notaire. Maison proposée, avec un contrat de construction de maison individuelle, dans le cadre de la loi du 19/12/1990, au prix de 188 500 € (Hors branchements et raccordements, papiers peints, peintures, revêtement de sol dans les chambres, qui sont chiffrés dans les travaux qui restent à charge du client. Tarif modifiable sans préavis). Étiquette énergie : A. Différents modèles disponibles pour ce terrain. Assurances et garanties du constructeur comprises (RC professionnelle, décennale, dommage ouvrage).Agence Maisons France Confort de Magny-le-Hongre (77700)
- Téléphone :
- 01 84 80 92 96
- Adressse :
- 11 rue de Courtalin
77700 Magny-le-Hongre, France
