Maison neuve à
La Celle-sur-Morin
(77515) Référence :
CY2355832_5
Prix du projet : Maison avec Terrain
prix 250 000 €
- 5 pièces
- 3 chambres
- Surface maison 90 m2
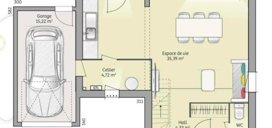
Maison de 5 pièces (90 m²) à vendre à La Celle-sur-Morin
PROCHE GARE - MAISON 5 PIÈCES NEUVE
En vente : proche de la gare de Guérard-La Celle-sur-Morin (Paris à 45 min par le Transilien P), proche de la gare de La Celle-sur-Morin (77515), nous sommes ravis de vous proposer cette maison de 5 pièces de plain-pied de 90 m².
Son intérieur compte trois chambres, une cuisine et une salle de bains. La maison est neuve.
Le terrain de la propriété s'étend sur 591 m².
L'École Primaire des Arches est implantée à moins de 10 minutes à pied. Niveau transports en commun, il y a sept gares à moins de 10 minutes en voiture. On trouve une boulangerie, un commerce et une épicerie à proximité de la maison.
Elle est à vendre pour la somme de 250 000 €.
N'hésitez pas à prendre contact avec notre agence (YAHIAOUI Cedric : 06-66-57-00-63) pour toute question sur la maison ou sur les démarches à suivre. Maisons France Confort Magny-le-Hongre vous accompagne à toutes les étapes de votre projet et dans tous vos projets immobiliers.
Annonce proposée par un Agent Commercial Partenaire.
Mentions légales
Terrain proposé par un partenaire foncier selon disponibilités et autorisation de publicité au prix de 89 500 €. Hors droit d'enregistrement et frais de notaire. Maison proposée, avec un contrat de construction de maison individuelle, dans le cadre de la loi du 19/12/1990, au prix de 160 500 € (Hors branchements et raccordements, papiers peints, peintures, revêtement de sol dans les chambres, qui sont chiffrés dans les travaux qui restent à charge du client. Tarif modifiable sans préavis). Étiquette énergie : A. Différents modèles disponibles pour ce terrain. Assurances et garanties du constructeur comprises (RC professionnelle, décennale, dommage ouvrage).Agence Maisons France Confort de Magny-le-Hongre (77700)
- Téléphone :
- 01 84 80 92 96
- Adressse :
- 11 rue de Courtalin
77700 Magny-le-Hongre, France
