Maison neuve à
La Celle-sur-Morin
(77515) Référence :
CY2355832_7
Prix du projet : Maison avec Terrain
prix 265 000 €
- 5 pièces
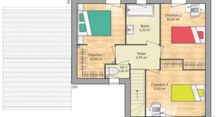
- 3 chambres
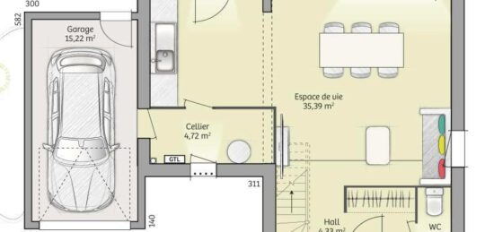
- Surface maison 90 m2
VENTE d'une maison F5 (90 m²) à La Celle-sur-Morin
PROCHE GARE - MAISON 5 PIÈCES NEUVE
En vente : à deux pas du Transilien P (gare de Guérard-La Celle-sur-Morin, 45 min de Paris), nous vous proposons cette maison de 5 pièces de 90 m² dans La Celle-sur-Morin (77515), proche de la gare.
C'est une maison de 2 niveaux. Son intérieur est composé de trois chambres, d'une cuisine et d'une salle de bains. La maison est neuve.
Le terrain de la propriété s'étend sur 591 m².
L'École Primaire des Arches est implantée à moins de 10 minutes à pied. Niveau transports en commun, il y a sept gares à moins de 10 minutes en voiture. On trouve une boulangerie, un commerce et une épicerie dans les environs.
Son prix de vente est de 265 000 €.
Contactez notre agence (YAHIAOUI Cedric : 06-66-57-00-63) pour toute information sur la maison, sur les modalités de vente ou sur les démarches à suivre. Maisons France Confort Magny-le-Hongre vous accompagne à toutes les étapes de votre projet et dans tous vos projets immobiliers.
Annonce proposée par un Agent Commercial Partenaire.
Mentions légales
Terrain proposé par un partenaire foncier selon disponibilités et autorisation de publicité au prix de 89 500 €. Hors droit d'enregistrement et frais de notaire. Maison proposée, avec un contrat de construction de maison individuelle, dans le cadre de la loi du 19/12/1990, au prix de 175 500 € (Hors branchements et raccordements, papiers peints, peintures, revêtement de sol dans les chambres, qui sont chiffrés dans les travaux qui restent à charge du client. Tarif modifiable sans préavis). Étiquette énergie : A. Différents modèles disponibles pour ce terrain. Assurances et garanties du constructeur comprises (RC professionnelle, décennale, dommage ouvrage).Agence Maisons France Confort de Magny-le-Hongre (77700)
- Téléphone :
- 01 84 80 92 96
- Adressse :
- 11 rue de Courtalin
77700 Magny-le-Hongre, France
