Maison neuve à
La Couture-Boussey
(27750) Référence :
AL2276223_1
Prix du projet : Maison avec Terrain
prix 209 900 €
- 5 pièces
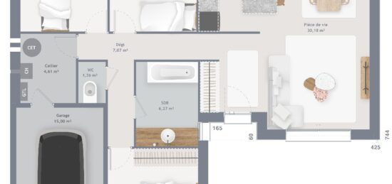
- 4 chambres
- Surface maison 101 m2
VENTE : maison T5 (101 m²) à La Couture-Boussey
MAISON 5 PIÈCES NEUVE - PROCHE D'ÉVREUX
À vendre à quelques kilomètres d'Évreux, laissez vous charmer par cette maison de 5 pièces de plain-pied de 101 m² et de 500 m² de terrain à La Couture-Boussey (27750).
Elle compte quatre chambres, une cuisine et une salle de bains. La maison est neuve.
Il y a l'École Élémentaire Aux Quatre Vents et l'École Maternelle Robert Poilvert à moins de 10 minutes à pied. Côté transports, on trouve la gare Bueil à moins de 10 minutes en voiture. L'autoroute A13 et les nationales N13, N154 et N12 sont accessibles à moins de 17 km. Il y a un tennis, une boulangerie, une supérette, une boucherie-charcuterie et un bureau de poste à quelques minutes à peine.
Son prix de vente est de 209 900 €.
Contactez notre agence Maisons France Confort Boos 02 35 80 66 62 / 06 15 24 16 98 pour obtenir de plus amples informations sur la maison, sur les démarches à suivre ou sur les modalités de vente. Faites de vos projets immobiliers une réalité avec Maisons France Confort Boos.
Annonce proposée par un Agent Commercial Partenaire.
Mentions légales
Terrain proposé par un partenaire foncier selon disponibilités et autorisation de publicité au prix de 62 000 €. Hors droit d'enregistrement et frais de notaire. Maison proposée, avec un contrat de construction de maison individuelle, dans le cadre de la loi du 19/12/1990, au prix de 147 900 € (Hors branchements et raccordements, papiers peints, peintures, revêtement de sol dans les chambres, qui sont chiffrés dans les travaux qui restent à charge du client. Tarif modifiable sans préavis). Étiquette énergie : A. Différents modèles disponibles pour ce terrain. Assurances et garanties du constructeur comprises (RC professionnelle, décennale, dommage ouvrage).Agence Maisons France Confort de Boos (76520)
- Téléphone :
- 02 35 80 66 62
- Adressse :
- 68 rue de la Forge Féret
76520 Boos, France
