Maison neuve à
La Ferté-sous-Jouarre
(77260) Référence :
TM2248640_5
Prix du projet : Maison avec Terrain
prix 480 000 €
- 4 pièces
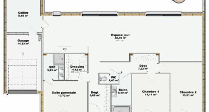
- 3 chambres
- Surface maison 120 m2
Maison de 4 pièces (120 m²) en vente à La Ferté-sous-Jouarre
MAISON 4 PIÈCES NEUVE - PROCHE DE MEAUX
Au pied de la gare (Paris à 40 min par le Transilien P), votre agence Maisons France Confort Magny-le-Hongre est ravie de vous présenter cette maison de 4 pièces de plain-pied de 120 m² et de 300 m² de terrain à vendre à La Ferté-sous-Jouarre (77260).
Elle se divise en trois chambres, une cuisine et deux salles de bains. Cette maison est neuve.
Des écoles de tous niveaux (de la maternelle au lycée) sont implantées à moins de 10 minutes à pied, tout comme une structure d'accueil pour la petite enfance. Niveau transports en commun, on trouve la gare La Ferté-sous-Jouarre à proximité. Il y a une bibliothèque, un tennis, des commerces, des boulangeries, trois supermarchés, une poissonnerie et des épiceries dans les environs. Le marché Boulevard de Turenne anime les environs.
Elle est à vendre pour la somme de 480 000 €.
Prenez contact avec Teddy MELES (tél : 06-17-56-83-36) pour obtenir de plus amples informations sur la maison, sur les démarches à suivre ou sur les modalités de vente. Faites de vos projets immobiliers une réalité avec Maisons France Confort Magny-le-Hongre.
Annonce proposée par un Agent Commercial Partenaire.
Mentions légales
Terrain proposé par un partenaire foncier selon disponibilités et autorisation de publicité au prix de 110 000 €. Hors droit d'enregistrement et frais de notaire. Maison proposée, avec un contrat de construction de maison individuelle, dans le cadre de la loi du 19/12/1990, au prix de 370 000 € (Hors branchements et raccordements, papiers peints, peintures, revêtement de sol dans les chambres, qui sont chiffrés dans les travaux qui restent à charge du client. Tarif modifiable sans préavis). Étiquette énergie : A. Différents modèles disponibles pour ce terrain. Assurances et garanties du constructeur comprises (RC professionnelle, décennale, dommage ouvrage).Agence Maisons France Confort de Magny-le-Hongre (77700)
- Téléphone :
- 01 84 80 92 96
- Adressse :
- 11 rue de Courtalin
77700 Magny-le-Hongre, France
