Maison neuve à
Labenne
(40530) Référence :
AD2447643_2
Prix du projet : Maison avec Terrain
prix 549 000 €
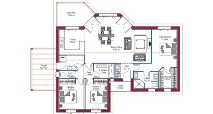
- 5 pièces
- 3 chambres
- Surface maison 107 m2
Amélie DABA des Maisons MCA à Capbreton, vous propose de découvrir ce terrain d'environ 500m², sur la commune de Labenne.
Situé à 20 minutes de Bayonne (en voiture ou en train), vous aurez accès à toutes les commodités du centre ville, commerces, services médicaux, crèches, école maternelle / primaire et collège.
Vous pourrez également profiter de la plage à moins de 10 minutes par la piste cyclable.
Ce terrain situé dans un lotissement, au calme, sera vendu entièrement viabilisé en eau, électricité, téléphone et tout à l'égout.
Contactez vite votre conseillère Amélie DABA, à l'agence MCA de Capbreton, afin qu'elle vous guide dans les démarches et vous accompagne dans ce projet de construction personnalisé.
Mentions légales
Idée de réalisation en modèle prêt à décorer sur l'un de nos terrains partenaires, sous réserve de disponibilités. Voir détails en agence.Agence Maisons de la Côte Atlantique de Capbreton (40130)
- Téléphone :
- 05 58 74 97 20
- Adressse :
- Place de la Gare
40130 Capbreton, France
