Maison neuve à
Lagrave
(81150) Référence :
JT2275468_3
Prix du projet : Maison avec Terrain
prix 255 037 €
- 6 pièces
- 5 chambres
- Surface maison 125 m2
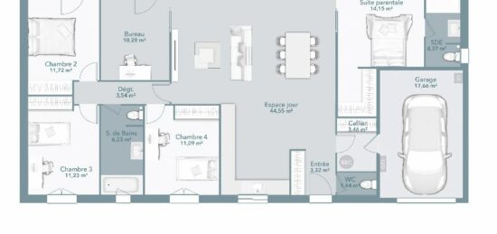
Maisons France Confort Albi, spécialiste de la construction traditionnelle et à ossature bois, vous présente le modèle Optima - 125 m².
Ce plain-pied séduit par sa pièce de vie spacieuse, lumineuse et fonctionnelle, au coeur de la maison. Les espaces sont intelligemment séparés :
Côté enfants : trois chambres et un bureau.
Côté parents : une suite parentale avec salle d'eau et dressing.
Autre atout : un garage avec accès direct à la maison via le cellier, pour plus de praticité au quotidien.
Un agencement optimisé pour créer le cocon idéal pour votre famille !
📞 Votre projet commence ici : contactez Maisons France Confort Albi au 05 63 43 56 40 pour en savoir plus sur nos offres.
Frais de notaire et annexes non inclus dans le prix indiqué.
Annonce proposée par un Agent Commercial Partenaire.
Mentions légales
Terrain proposé par un partenaire foncier selon disponibilités et autorisation de publicité au prix de 64 000 €. Hors droit d'enregistrement et frais de notaire. Maison proposée, avec un contrat de construction de maison individuelle, dans le cadre de la loi du 19/12/1990, au prix de 191 037 € (Hors branchements et raccordements, papiers peints, peintures, revêtement de sol dans les chambres, qui sont chiffrés dans les travaux qui restent à charge du client. Tarif modifiable sans préavis). Étiquette énergie : A. Différents modèles disponibles pour ce terrain. Assurances et garanties du constructeur comprises (RC professionnelle, décennale, dommage ouvrage).Agence Maisons France Confort de Albi (81000)
- Téléphone :
- 05 63 43 56 40
- Adressse :
- 187 avenue Colonel Teyssier
81000 Albi, France
