Maison neuve à
Le Coudray-sur-Thelle
(60790) Référence :
FBcoudraysurthelle88_2
Prix du projet : Maison avec Terrain
prix 258 000 €
- 5 pièces
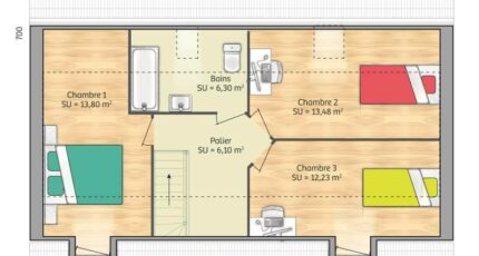
- 3 chambres
- Surface maison 80 m2
Le Coudray-sur-Thelle : maison de 5 pièces (80 m²) en vente
IDÉALEMENT SITUÉE - MAISON 5 PIÈCES NEUVE
À deux pas de Cergy, nous vous présentons à vendre, idéalement située dans Le Coudray-sur-Thelle (60430), cette maison de 5 pièces de 80 m² et de 980 m² de terrain.
Cette maison possède 2 niveaux. Elle inclut trois chambres, une cuisine et une salle de bains. Cette maison est neuve.
La maison est située dans un quartier attractif. On y trouve une école maternelle. Côté transports, on trouve quatre gares à moins de 10 minutes en voiture. L'autoroute A16 et la nationale N31 sont accessibles à moins de 10 km. Il y a une bibliothèque et deux commerces à quelques minutes à peine.
Son prix de vente est de 258 000 €.
Contactez Fabrice BONELLO (06-09-50-50-09) pour toute question sur la maison. Maisons France Confort Beauvais est là pour vous accompagner dans toutes vos démarches.
Mentions légales
Terrain proposé par un partenaire foncier selon disponibilités et autorisation de publicité au prix de 77 500 €. Hors droit d'enregistrement et frais de notaire. Terrain + Maison proposés au prix de 258 000 € (Hors branchements et raccordements, papiers peints, peintures, revêtement de sol dans les chambres. Tarif modifiable sans préavis). Etiquette énergie : A. Différents modèles disponibles pour ce terrain. Assurances et garanties du constructeur (RC professionnelle, décennale, dommage ouvrage, garantie de remboursement de l'acompte, livraison à prix et délai convenu) : https://www.maisons-france-confort.fr/mentions-legales/. HEXAOM Services est enregistré auprès de l'ORIAS en tant que Courtier en financement, Niveau 1, sous le numéro 14001345.Agence Maisons France Confort de Beauvais (60000)
- Téléphone :
- 03 44 04 40 04
- Adressse :
- 42 rue Pierre Jacoby
60000 Beauvais, France
