Maison neuve à
Le Folgoët
(29260) Référence :
ET2420411_2
Prix du projet : Maison avec Terrain
prix 265 000 €
- 4 pièces
- 3 chambres
- Surface maison 80 m2
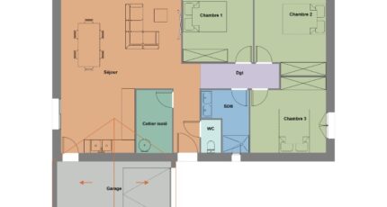
Le Folgoët : maison de 4 pièces (80 m²) en vente
IDÉALEMENT SITUÉE - MAISON 4 PIÈCES NEUVE
En vente à quelques kilomètres de la mer et à deux pas de Brest, idéalement située dans Le Folgoët (29260), nous sommes heureux de vous présenter cette maison de 4 pièces de plain-pied de 80 m². Son intérieur propose trois chambres, une cuisine et une salle de bains.
Le terrain de cette maison s'étend sur 495 m².
La maison est neuve.
La propriété se trouve dans un quartier prisé. L'École Primaire Privée Sainte Anne-Notre Dame et l'École Primaire Publique Paul Gauguin sont implantées à moins de 10 minutes à pied. Il y a un accès à la nationale N12 à 10 km.
Elle est proposée à l'achat pour 265 000 €.
N'hésitez pas à prendre contact avec notre agence (TILLY Erwan) pour plus de renseignements sur la maison. Maisons de l'Avenir Guipavas vous accompagne dans tous vos projets immobiliers et dans toutes vos démarches.
Mentions légales
Terrain proposé par un partenaire foncier selon disponibilités et autorisation de publicité au prix de 67 300 €. Hors droit d'enregistrement et frais de notaire. Terrain + Maison proposés au prix de 197 700 € (Hors branchements et raccordements, papiers peints, peintures, revêtement de sol dans les chambres. Tarif modifiable sans préavis). Etiquette énergie : A. Différents modèles disponibles pour ce terrain. Assurances et garanties du constructeur (RC professionnelle, décennale, dommage ouvrage, garantie de remboursement de l'acompte, livraison à prix et délai convenu) : https://www.maisonsdelavenir.com/mentions-legales/.Agence Maisons de l'Avenir de Guipavas (29490)
- Téléphone :
- 02 98 03 90 90
- Adressse :
- 10 Rue de Poul Ar Feunteun
29490 Guipavas, France
