Maison neuve à
Le Menoux (36200) Référence : FR2303219_6

Prix du projet : Maison avec Terrain

prix 205 900 €

  • 3 pièces
  • 2 chambres
  • Surface maison 100 m2

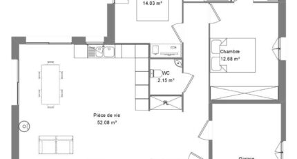
VENTE : maison de 3 pièces (100 m²) au Menoux
PROCHE DE CHÂTEAUROUX - MAISON 3 PIÈCES NEUVE
En vente : à deux pas de Châteauroux, au Menoux (36200), découvrez cette maison de 3 pièces de plain-pied de 100 m² et de 1 382 m² de terrain. Elle comporte deux chambres, une cuisine et deux salles de bains.
La maison est neuve.
Il y a l'École Élémentaire François Hervier à moins de 10 minutes à pied. Côté transports en commun, on trouve deux gares (Argenton-sur-Creuse et Chabenet) à moins de 10 minutes en voiture. Il y a un accès à l'autoroute A20 à 6 km. Il y a une bibliothèque, une boulangerie et un bureau de poste à proximité du bien.
Elle est proposée à l'achat pour 205 900 €.
Contactez Franck RUBIO (06-30-49-64-43) pour obtenir de plus amples renseignements sur cette maison. Maisons Bruno Petit MJB Châteauroux vous accompagne dans tous vos projets immobiliers et dans toutes vos démarches.

Mentions légales

Terrain proposé par un partenaire foncier selon disponibilités et autorisation de publicité au prix de 8 500 €. Hors droit d'enregistrement et frais de notaire. Terrain + Maison proposés au prix de 197 400 € (Hors branchements et raccordements, papiers peints, peintures, revêtement de sol dans les chambres. Tarif modifiable sans préavis). Etiquette énergie : A. Différents modèles disponibles pour ce terrain. Assurances et garanties du constructeur (RC professionnelle, décennale, dommage ouvrage, garantie de remboursement de l'acompte, livraison à prix et délai convenu) : https://www.maisons-brunopetit.fr/mentions-legales/.

Contactez l'agence de Châteauroux

02 54 22 66 24

    * Champs obligatoires

    Vos informations sont traitées par HEXAOM et transmises à un conseiller commercial qui vous contactera afin de répondre à votre demande. Les plans et images présentés sur notre site sont la propriété d’HEXAOM et ne peuvent pas être reproduits sans son accord. Pour retrouver notre politique de protection des données personnelles et exercer vos droits conformément à la « loi informatique et liberté » cliquez-ici.