Maison neuve à
Le Pian-Médoc
(33290) Référence :
JR2309223_2
Prix du projet : Maison avec Terrain
prix 305 200 €
- 4 pièces
- 2 chambres
- Surface maison 90 m2
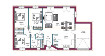
VENTE d'une maison F4 (90 m²) au Pian-Médoc
QUARTIER RECHERCHÉ - MAISON 4 PIÈCES NEUVE
En vente à 13 km de la côte atlantique et à 11 km de Bordeaux, construite dans un quartier convoité du Pian-Médoc (33290), nous vous proposons cette maison de 4 pièces de plain-pied de 90 m² et de 400 m² de terrain. Conçue de plain-pied, elle offre deux chambres, une cuisine et une salle de bains.
Cette maison est neuve.
La maison est située dans un secteur attractif. On trouve l'École Élementaire le Bourg et l'École Maternelle le Brugat à moins de 10 minutes à pied. Niveau transports, il y a six gares à moins de 10 minutes en voiture. L'autoroute A630 est accessible à 9 km. On trouve une bibliothèque, un tennis, un commerce, une boulangerie, un bureau de poste et une boucherie-charcuterie à quelques minutes à peine.
Son prix de vente est de 305 200 €.
N'hésitez pas à prendre contact avec notre agence (Jonathan RAIMBAULT : 07-69-40-40-06) pour obtenir de plus amples renseignements sur la maison.
Agence Maisons de la Côte Atlantique de Bordeaux (33000)
- Téléphone :
- 05 57 19 56 19
- Adressse :
- Homexpo - Pavillon HORIZON
33000 Bordeaux, France
