Maison neuve à
Le Poinçonnet (36330) Référence : FR2301878_5

Prix du projet : Maison avec Terrain

prix 413 600 €

  • 6 pièces
  • 5 chambres
  • Surface maison 140 m2

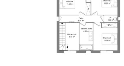
🏡 Maison neuve F6 - 148 m² habitables & garage 38 m² - Le Poinçonnet
📍 À Le Poinçonnet, dans un quartier calme, découvrez ce projet de maison neuve 6 pièces de 148 m² habitables, généreuse par ses volumes et confortable grâce à ses différents espaces de vie. Elle est implantée sur un terrain à proximité des réseaux de bus 🚌.
✨ Personnalisez votre plan selon vos envies !
________________________________________
✨ Une maison contemporaine et spacieuse
Design travaillé multi-niveaux : ensemble couvert avec toit 4 pans et toit terrasse au premier niveau
Finitions extérieures personnalisables : enduits bi-couleur et menuiseries de couleur
Espaces optimisés, confort au quotidien et performance énergétique maximale
________________________________________
🔧 Prestations de qualité
✔ Chauffage, eau chaude et VMC Atlantic
✔ Volets roulants motorisés et centralisés avec domotique
✔ Sanitaires Jacob Delafon
✔ Portes intérieures gravées
✔ Menuiseries PVC / mixtes / aluminium
✔ Construction conforme RE 2020
________________________________________
📜 Projet réalisé sous Contrat de Construction (CCMI - loi de 1990) pour une sécurité maximale.
🤝 Maisons Brunon Petit, constructeur local depuis 47 ans, vous accompagne pour concevoir votre maison sur mesure, adaptée à vos besoins.
📞 Contact : Franck RUBIO - °6 30 49 64 43 (SMS acceptés)
Pour plus d'informations et créer votre projet personnalisé.

Mentions légales

Terrain proposé par un partenaire foncier selon disponibilités et autorisation de publicité au prix de 63 000 €. Hors droit d'enregistrement et frais de notaire. Terrain + Maison proposés au prix de 350 600 € (Hors branchements et raccordements, papiers peints, peintures, revêtement de sol dans les chambres. Tarif modifiable sans préavis). Etiquette énergie : A. Différents modèles disponibles pour ce terrain. Assurances et garanties du constructeur (RC professionnelle, décennale, dommage ouvrage, garantie de remboursement de l'acompte, livraison à prix et délai convenu) : https://www.maisons-brunopetit.fr/mentions-legales/.

Contactez l'agence de Châteauroux

02 54 22 66 24

    * Champs obligatoires

    Vos informations sont traitées par HEXAOM et transmises à un conseiller commercial qui vous contactera afin de répondre à votre demande. Les plans et images présentés sur notre site sont la propriété d’HEXAOM et ne peuvent pas être reproduits sans son accord. Pour retrouver notre politique de protection des données personnelles et exercer vos droits conformément à la « loi informatique et liberté » cliquez-ici.