Maison neuve à
Le Pont-Chrétien-Chabenet (36800) Référence : KG2293138_7

Prix du projet : Maison avec Terrain

prix 304 300 €

  • 5 pièces
  • 4 chambres
  • Surface maison 120 m2

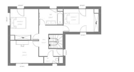
Maison de 5 pièces (120 m²) en vente au Pont-Chrétien-Chabenet
EMPLACEMENT PRIVILÉGIÉ - MAISON 5 PIÈCES NEUVE
En vente : localisée à deux pas de Châteauroux, votre agence Maisons Bruno Petit MJB Châteauroux est heureuse de vous proposer cette maison de 5 pièces de 120 m² bénéficiant d'un emplacement privilégié dans Le Pont-Chrétien-Chabenet (36800).
Cette maison comporte 2 niveaux. Son intérieur propose quatre chambres, une cuisine et deux salles de bains. La maison est neuve.
Le terrain de la propriété s'étend sur 1 987 m².
Cette maison se trouve dans un quartier convoité. Il y a l'École Primaire Joséphine Baker à moins de 10 minutes à pied. Niveau transports en commun, on trouve les gares Chabenet, Argenton-sur-Creuse et Lothiers à moins de 10 minutes en voiture. L'autoroute A20 est accessible à 4 km. Il y a un tennis à quelques minutes.
Son prix de vente est de 304 300 €.
Contactez Kevin GRIMAUD (06-22-14-89-67) pour obtenir de plus amples renseignements sur le bien, sur les démarches à suivre ou sur les modalités de vente. Maisons Bruno Petit MJB Châteauroux vous accompagne dans tous vos projets immobiliers et à toutes les étapes de votre projet.

Mentions légales

Terrain proposé par un partenaire foncier selon disponibilités et autorisation de publicité au prix de 20 500 €. Hors droit d'enregistrement et frais de notaire. Maison proposée, avec un contrat de construction de maison individuelle, dans le cadre de la loi du 19/12/1990, au prix de 283 800 € (Hors branchements et raccordements, papiers peints, peintures, revêtement de sol dans les chambres, qui sont chiffrés dans les travaux qui restent à charge du client. Tarif modifiable sans préavis). Étiquette énergie : A. Différents modèles disponibles pour ce terrain. Assurances et garanties du constructeur comprises (RC professionnelle, décennale, dommage ouvrage).

Contactez l'agence de Châteauroux

02 54 22 66 24

    * Champs obligatoires

    Vos informations sont traitées par HEXAOM et transmises à un conseiller commercial qui vous contactera afin de répondre à votre demande. Les plans et images présentés sur notre site sont la propriété d’HEXAOM et ne peuvent pas être reproduits sans son accord. Pour retrouver notre politique de protection des données personnelles et exercer vos droits conformément à la « loi informatique et liberté » cliquez-ici.