Maison neuve à
Les Sorinières
(44840) Référence :
TD2328634_5
Prix du projet : Maison avec Terrain
prix 452 500 €
- 6 pièces
- 5 chambres
- Surface maison 125 m2
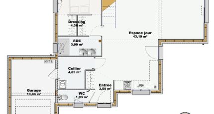
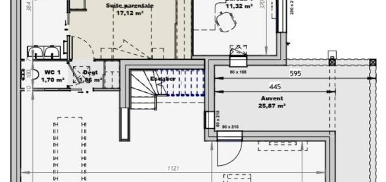
Les Sorinières : maison T6 (125 m²) OSSATURE BOIS
PROCHE DE NANTES - MAISON 6 PIÈCES OSSATURE BOIS
À vendre : localisée à 25 km de la côte atlantique et à quelques kilomètres de Nantes, aux Sorinières (44840), Maisons de l'Avenir Rezé vous présente cette maison de 6 pièces de 125 m² et de 540 m² de terrain.
Cette maison possède 2 niveaux. Elle offre cinq chambres, une cuisine et deux salles de bains.
Son prix de vente est de 452 500 €.
N'hésitez pas à prendre contact avec Thibault DUPONT (tél : 02-40-26-28-28) pour tout renseignement sur la maison. Maisons de l'Avenir Rezé est là pour vous accompagner à toutes les étapes de l'achat.
Mentions légales
Maisons de l’Avenir, constructeur de maisons individuelles, propose en collaboration avec ses partenaires fonciers, une sélection de terrains constructibles, selon disponibilité, pour la construction de maisons neuves définies par le constructeur, avec un contrat de construction de maison individuelle, dans le cadre de la loi du 19/12/1990. Prix net, hors frais notariés, d'enregistrement et de publicité foncière
Terrain proposé au prix de : 137 500 €
Maison proposée au prix de : 315 000 €
Etiquette énergie : A. Assurances et garanties du constructeur (RC professionnelle, décennale, dommage ouvrage, Garantie de livraison à prix et délai convenu). https://www.maisonsdelavenir.com/mentions-legales/
Agence Maisons de l'Avenir de Rezé (44400)
- Téléphone :
- 02 40 26 28 28
- Adressse :
- 56, rue de la butte de Praud
44400 Rezé, France
