Maison neuve à
L'Isle-Adam (95290) Référence : FBchampagne99_2

Prix du projet : Maison avec Terrain

prix 359 000 €

  • 5 pièces
  • 3 chambres
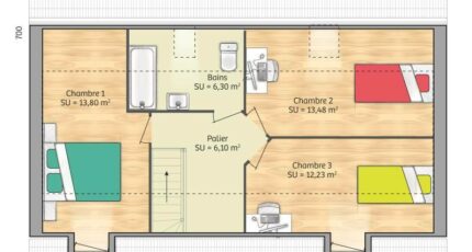
  • Surface maison 80 m2

Maison de 5 pièces (80 m²) à vendre à Champagne-sur-Oise
QUARTIER RECHERCHÉ - MAISON 5 PIÈCES NEUVE
Proche du Transilien H (50 min de Paris), Maisons France Confort Beauvais vous présente cette maison de 5 pièces de 80 m² et de 460 m² de terrain située dans un quartier recherché de Champagne-sur-Oise (95660).
C'est une maison de 2 niveaux. Son intérieur propose trois chambres, une cuisine et une salle de bains. La maison est neuve.
Cette maison se trouve dans un secteur attractif. Des écoles maternelles et élémentaires y sont implantées. Niveau transports, il y a 12 gares à moins de 10 minutes en voiture. On trouve une bibliothèque à proximité du logement.
Elle est à vendre pour la somme de 359 000 €.
Prenez contact avec Fabrice BONELLO (06-09-50-50-09) pour plus de renseignements sur la maison, sur les modalités de vente ou sur les démarches à suivre. Maisons France Confort Beauvais est là pour vous accompagner à toutes les étapes de l'achat.

Mentions légales

Terrain proposé par un partenaire foncier selon disponibilités et autorisation de publicité au prix de 169 000 €. Hors droit d'enregistrement et frais de notaire. Terrain + Maison proposés au prix de 359 000 € (Hors branchements et raccordements, papiers peints, peintures, revêtement de sol dans les chambres. Tarif modifiable sans préavis). Etiquette énergie : A. Différents modèles disponibles pour ce terrain. Assurances et garanties du constructeur (RC professionnelle, décennale, dommage ouvrage, garantie de remboursement de l'acompte, livraison à prix et délai convenu) : https://www.maisons-france-confort.fr/mentions-legales/. HEXAOM Services est enregistré auprès de l'ORIAS en tant que Courtier en financement, Niveau 1, sous le numéro 14001345.

Contactez l'agence de Beauvais

03 44 04 40 04

    * Champs obligatoires

    Vos informations sont traitées par HEXAOM et transmises à un conseiller commercial qui vous contactera afin de répondre à votre demande. Les plans et images présentés sur notre site sont la propriété d’HEXAOM et ne peuvent pas être reproduits sans son accord. Pour retrouver notre politique de protection des données personnelles et exercer vos droits conformément à la « loi informatique et liberté » cliquez-ici.