Maison neuve à
L'Isle-Adam
(95290) Référence :
FBchampagne99_3
Prix du projet : Maison avec Terrain
prix 378 000 €
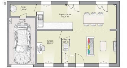
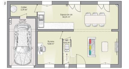
- 5 pièces
- 3 chambres
- Surface maison 90 m2
Champagne-sur-Oise : maison F5 (90 m²) en vente
QUARTIER RECHERCHÉ - MAISON 5 PIÈCES NEUVE
À quelques minutes du Transilien H (50 min de Paris), découvrez à vendre, nichée dans un quartier convoité de Champagne-sur-Oise (95660), cette maison de 5 pièces de 90 m² et de 460 m² de terrain. Elle dispose de trois chambres, d'une cuisine et d'une salle de bains.
Cette maison compte 2 niveaux. Elle est neuve.
Cette maison se situe dans un secteur prisé. On y trouve des établissements scolaires primaires. Niveau transports, on trouve 12 gares à moins de 10 minutes en voiture. Il y a une bibliothèque dans les environs.
Son prix de vente est de 378 000 €.
Prenez contact avec notre agence (Fabrice BONELLO : 06-09-50-50-09) pour tout renseignement sur la maison.
Mentions légales
Terrain proposé par un partenaire foncier selon disponibilités et autorisation de publicité au prix de 169 000 €. Hors droit d'enregistrement et frais de notaire. Terrain + Maison proposés au prix de 209 000 € (Hors branchements et raccordements, papiers peints, peintures, revêtement de sol dans les chambres. Tarif modifiable sans préavis). Etiquette énergie : A. Différents modèles disponibles pour ce terrain. Assurances et garanties du constructeur (RC professionnelle, décennale, dommage ouvrage, garantie de remboursement de l'acompte, livraison à prix et délai convenu) : https://www.maisons-france-confort.fr/mentions-legales/. HEXAOM Services est enregistré auprès de l'ORIAS en tant que Courtier en financement, Niveau 1, sous le numéro 14001345.Agence Maisons France Confort de Beauvais (60000)
- Téléphone :
- 03 44 04 40 04
- Adressse :
- 42 rue Pierre Jacoby
60000 Beauvais, France
