Maison neuve à
Lonzac (17520) Référence : TD2426846_1

Prix du projet : Maison avec Terrain

prix 299 375 €

  • 5 pièces
  • 3 chambres
  • Surface maison 128 m2

PROCHE COGNAC et SAINTES - MAISON 5 PIÈCES NEUVE
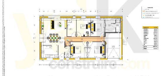
Nous sommes heureux de vous présenter cette maison de 5 pièces de plain-pied de 128 m² à Lonzac (17520).
Conçue de plain-pied, elle comporte trois chambres, grande pièce de vie lumineuse avec cuisine et deux salles de bains et un garage.
PLAN MODULABLE, MODE DE CHAUFFAGE ECONOMIQUE.
Le terrain du bien s'étend sur 1 600 m².
Il y a l'École Élémentaire Lonzac à moins de 10 minutes à pied. L'autoroute A10 et la nationale N141 sont accessibles à moins de 16 km.
N'hésitez pas à prendre contact avec notre agence (Tony DAIGRE : 06-15-20-16-38) pour tout renseignement sur la maison. Concrétisez vos projets immobiliers avec Alpha Constructions Cognac.

Mentions légales

Terrain proposé par un partenaire foncier selon disponibilité dans le cadre d’un projet de construction avec Alpha Constructions. Les descriptions, photographies, surfaces et prix illustrant l’annonce sont fournies à titre indicatif et ne sont pas contractuels. Non soumis au DPE. Différents modèles disponibles.

Contactez l'agence de Cognac

05 17 22 82 53

    * Champs obligatoires

    Vos informations sont traitées par HEXAOM et transmises à un conseiller commercial qui vous contactera afin de répondre à votre demande. Les plans et images présentés sur notre site sont la propriété d’HEXAOM et ne peuvent pas être reproduits sans son accord. Pour retrouver notre politique de protection des données personnelles et exercer vos droits conformément à la « loi informatique et liberté » cliquez-ici.