Maison neuve à
Lorrez-le-Bocage-Préaux
(77710) Référence :
AD2318399_2
Prix du projet : Maison avec Terrain
prix 221 900 €
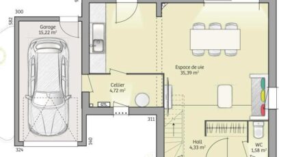
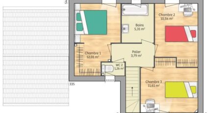
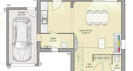
- 5 pièces
- 3 chambres
- Surface maison 90 m2
Lorrez-le-Bocage-Préaux : maison T5 (90 m²) en vente
EMPLACEMENT PRIVILÉGIÉ - MAISON 5 PIÈCES NEUVE
À vendre : à 31 km de Sens, bénéficiant d'un emplacement privilégié dans Lorrez-le-Bocage-Préaux (77710), votre agence Maisons France Confort Nemours est heureuse de vous proposer cette maison de 5 pièces de 90 m² et de 905 m² de terrain. Son intérieur comporte trois chambres, une cuisine et une salle de bains.
Cette maison compte 2 niveaux. Elle est neuve.
La maison se trouve dans un quartier recherché. Il y a l'École Élémentaire les Chenevières, l'École Maternelle les Chenevières et le Collège Jacques Prévert à moins de 10 minutes à pied. On trouve une bibliothèque, une boulangerie, un supermarché, deux épiceries, une boucherie-charcuterie et un bureau de poste à quelques minutes à peine.
Son prix de vente est de 221 900 €.
Contactez notre constructeur (DELOHEN Anne : 06-30-93-26-67) pour plus d'informations sur la maison, sur les modalités de vente ou sur les démarches à suivre.
Annonce proposée par un Agent Commercial Partenaire.
Mentions légales
Terrain proposé par un partenaire foncier selon disponibilités et autorisation de publicité au prix de 45 000 €. Hors droit d'enregistrement et frais de notaire. Maison proposée, avec un contrat de construction de maison individuelle, dans le cadre de la loi du 19/12/1990, au prix de 176 900 € (Hors branchements et raccordements, papiers peints, peintures, revêtement de sol dans les chambres, qui sont chiffrés dans les travaux qui restent à charge du client. Tarif modifiable sans préavis). Étiquette énergie : A. Différents modèles disponibles pour ce terrain. Assurances et garanties du constructeur comprises (RC professionnelle, décennale, dommage ouvrage).Agence Maisons France Confort de Nemours (77140)
- Téléphone :
- 01 64 28 58 32
- Adressse :
- 16 Avenue Carnot
77140 Nemours, France
