Maison neuve à
Lugon-et-l'Île-du-Carnay
(33240) Référence :
JB2347433_2
Prix du projet : Maison avec Terrain
prix 183 000 €
- 3 pièces
- 2 chambres
- Surface maison 65 m2
CONTACT: O6-11-47-12-05
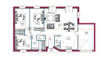
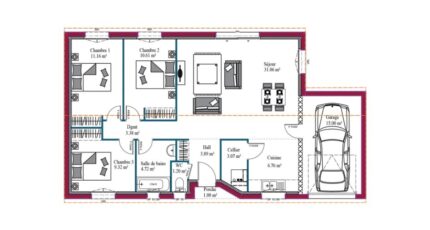
Lugon-et-l'Île-du-Carnay : maison de 3 pièces (84 m²) à vendre
QUARTIER RECHERCHÉ - MAISON 3 PIÈCES Déclinable en plusieurs surfaces, celons vos besoins.
Localisée à 23 km de Bordeaux, dans un quartier attractif de Lugon-et-l'Île-du-Carnay (33240), je suis heureux de vous présenter cette maison de 3 pièces de plain-pied de 84 m² et de 412 m² de terrain. Elle est composée de deux chambres, d'une cuisine et d'une salle de bains.
Le bien se trouve dans un secteur prisé. Une école primaire y est implantée. Niveau transports en commun, il y a sept gares à moins de 10 minutes en voiture. Les autoroutes A10 et A89 et les nationales N89 et N10 sont accessibles à moins de 10 km. On trouve un tennis, un commerce et une boulangerie dans les environs.
Projet maison, plus terrain est à 183 000 €.
Contactez Jerome (tél :O6-11-47-12-05) pour obtenir de plus amples informations sur votre future projet de vie.
Agence Maisons de la Côte Atlantique de Saint-André-de-Cubzac (33240)
- Téléphone :
- 05 57 43 10 38
- Adressse :
- 16, Place du Champ de Foire
33240 Saint-André-de-Cubzac, France
