Maison neuve à
Lunel-Viel
(34400) Référence :
LR2479231_2
Prix du projet : Maison avec Terrain
prix 722 000 €
- 5 pièces
- 3 chambres
- Surface maison 150 m2
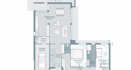
Maison de 5 pièces (150 m²) à vendre à Lunel
IDÉALEMENT SITUÉE - MAISON 5 PIÈCES NEUVE
À Lunel, situé à 14 km de la mer Méditerranée, à 30 minutes de Nîmes et de Montpellier, et 15 minutes de La Grande Mottes, Maisons France Confort Montpellier vous propose cette maison de 5 pièces de 150 m² à vendre idéalement placée dans Lunel (34400).
C'est une maison de 2 niveaux. Son intérieur propose trois chambres, une cuisine et deux salles de bains. La maison est neuve.
Le terrain de la propriété est de 1 204 m².
Cette maison se situe dans un quartier attractif. Il y a plusieurs établissements scolaires (maternelle, élémentaire, primaire et collège) à moins de 10 minutes à pied, tout comme deux structures d'accueil pour la petite enfance. Niveau transports en commun, on trouve la gare Lunel juste à côté. L'autoroute A9 est accessible à 4 km. Il y a un tennis, des commerces, des épiceries, deux poissonneries, trois supérettes et un bureau de poste dans les environs.
Elle est à vendre pour la somme de 722 000 €.
Prenez contact avec notre agence (Lionel ROMERA : 06-30-39-77-79) pour tout renseignement sur la maison ou sur les démarches à suivre.
Annonce proposée par un Agent Commercial Partenaire.
Mentions légales
Terrain proposé par un partenaire foncier selon disponibilités et autorisation de publicité au prix de 259 000 €. Hors droit d'enregistrement et frais de notaire. Terrain + Maison proposés au prix de 722 000 € (Hors branchements et raccordements, papiers peints, peintures, revêtement de sol dans les chambres. Tarif modifiable sans préavis). Etiquette énergie : A. Différents modèles disponibles pour ce terrain. Assurances et garanties du constructeur (RC professionnelle, décennale, dommage ouvrage, garantie de remboursement de l'acompte, livraison à prix et délai convenu) : https://www.maisons-france-confort.fr/mentions-legales/. HEXAOM Services est enregistré auprès de l'ORIAS en tant que Courtier en financement, Niveau 1, sous le numéro 14001345.Agence Maisons France Confort de Montpellier (34000)
- Téléphone :
- 04 67 64 85 11
- Adressse :
- 48, impasse Louis Ferdinand Herold
34000 Montpellier, France
