Maison neuve à
Magny-le-Hongre
(77700) Référence :
HN2334511_1
Prix du projet : Maison avec Terrain
prix 380 000 €
- 5 pièces
- 3 chambres
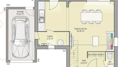
- Surface maison 90 m2
Magny-le-Hongre : maison de 5 pièces (90 m²) en vente
IDÉALEMENT SITUÉE - MAISON 5 PIÈCES NEUVE
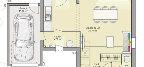
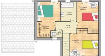
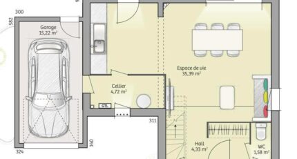
En vente : à deux pas de la station Val d'Europe (Paris à 30 min avec le RER A), idéalement située dans Magny-le-Hongre (77700), nous sommes heureux de vous présenter cette maison de 5 pièces de 90 m². Elle compte trois chambres, une cuisine et une salle de bains.
Le terrain de la propriété est de 509 m².
Cette maison comporte 2 niveaux. Elle est neuve.
La maison est située dans un quartier attractif. Plusieurs écoles (maternelle, élémentaire, primaire et collège) sont implantées à moins de 10 minutes à pied, tout comme deux structures d'accueil pour les enfants en bas âge. Niveau transports en commun, il y a la ligne de RER A (Chessy-Marne-La-Vallée) ainsi que sept gares à moins de 10 minutes en voiture. On trouve un tennis, trois boulangeries, des commerces, un supermarché, trois épiceries et un bureau de poste à proximité de la maison.
Son prix de vente est de 380 000 €.
Contactez notre agence (Hugo NGUYEN : 06-60-97-69-03) pour plus de renseignements sur la maison, sur les démarches à suivre ou sur les modalités de vente. Donnez vie à vos projets immobiliers avec Maisons France Confort Magny-le-Hongre.
Annonce proposée par un Agent Commercial Partenaire.
Mentions légales
Terrain proposé par un partenaire foncier selon disponibilités et autorisation de publicité au prix de 170 000 €. Hors droit d'enregistrement et frais de notaire. Terrain + Maison proposés au prix de 380 000 € (Hors branchements et raccordements, papiers peints, peintures, revêtement de sol dans les chambres. Tarif modifiable sans préavis). Etiquette énergie : A. Différents modèles disponibles pour ce terrain. Assurances et garanties du constructeur (RC professionnelle, décennale, dommage ouvrage, garantie de remboursement de l'acompte, livraison à prix et délai convenu) : https://www.maisons-france-confort.fr/mentions-legales/. HEXAOM Services est enregistré auprès de l'ORIAS en tant que Courtier en financement, Niveau 1, sous le numéro 14001345.Agence Maisons France Confort de Magny-le-Hongre (77700)
- Téléphone :
- 01 84 80 92 96
- Adressse :
- 11 rue de Courtalin
77700 Magny-le-Hongre, France
