Maison neuve à
Magny-le-Hongre
(77700) Référence :
HN2334511_4
Prix du projet : Maison avec Terrain
prix 390 000 €
- 5 pièces
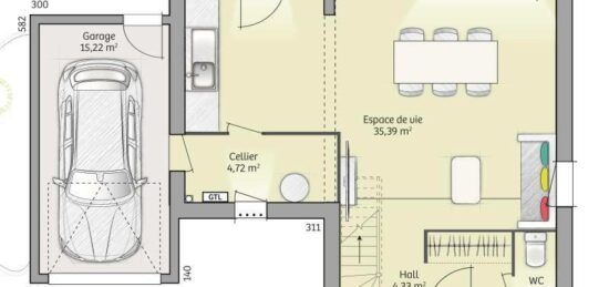
- 3 chambres
- Surface maison 95 m2
Maison de 5 pièces (95 m²) à vendre à Magny-le-Hongre
IDÉALEMENT SITUÉE - MAISON 5 PIÈCES NEUVE
À vendre : à côté du RER A (station Val d'Europe, 30 min de Paris), idéalement située dans Magny-le-Hongre (77700), nous sommes heureux de vous présenter cette maison de 5 pièces de plain-pied de 95 m² et de 509 m² de terrain.
Son intérieur inclut trois chambres, une cuisine et deux salles de bains. La maison est neuve.
Cette maison se situe dans un quartier prisé. Plusieurs établissements scolaires (maternelle, élémentaire, primaire et collège) se trouvent à moins de 10 minutes à pied, tout comme deux structures d'accueil pour la petite enfance. Niveau transports, il y a la ligne de RER A (Chessy-Marne-La-Vallée) ainsi que sept gares à moins de 10 minutes en voiture. Il y a un tennis, trois boulangeries, des commerces, un supermarché, un bureau de poste et trois épiceries dans les environs.
Elle est à vendre pour la somme de 390 000 €.
N'hésitez pas à prendre contact avec notre agence (NGUYEN Hugo : 06-60-97-69-03) pour obtenir de plus amples informations sur la maison ou sur les démarches à suivre. Maisons France Confort Magny-le-Hongre est là pour vous accompagner dans tous vos projets immobiliers.
Annonce proposée par un Agent Commercial Partenaire.
Mentions légales
Terrain proposé par un partenaire foncier selon disponibilités et autorisation de publicité au prix de 170 000 €. Hors droit d'enregistrement et frais de notaire. Terrain + Maison proposés au prix de 390 000 € (Hors branchements et raccordements, papiers peints, peintures, revêtement de sol dans les chambres. Tarif modifiable sans préavis). Etiquette énergie : A. Différents modèles disponibles pour ce terrain. Assurances et garanties du constructeur (RC professionnelle, décennale, dommage ouvrage, garantie de remboursement de l'acompte, livraison à prix et délai convenu) : https://www.maisons-france-confort.fr/mentions-legales/. HEXAOM Services est enregistré auprès de l'ORIAS en tant que Courtier en financement, Niveau 1, sous le numéro 14001345.Agence Maisons France Confort de Magny-le-Hongre (77700)
- Téléphone :
- 01 84 80 92 96
- Adressse :
- 11 rue de Courtalin
77700 Magny-le-Hongre, France
