Maison neuve à
Margaux
(33460) Référence :
JR2266412_1
Prix du projet : Maison avec Terrain
prix 236 930 €
- 4 pièces
- 2 chambres
- Surface maison 65 m2
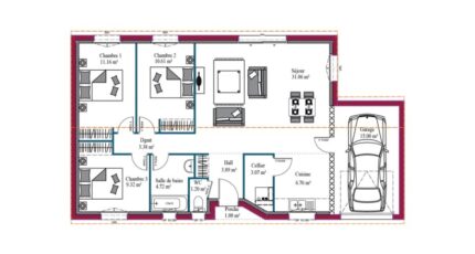
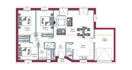
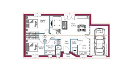
VENTE : maison de 4 pièces (65 m²) à Margaux
EMPLACEMENT PRIVILÉGIÉ - MAISON 4 PIÈCES NEUVE
En vente : située sur le littoral atlantique et à deux pas de Bordeaux, nous vous proposons, bénéficiant d'un emplacement privilégié dans Margaux (33460), cette maison de 4 pièces de plain-pied de 65 m².
Elle comporte deux chambres, une cuisine et une salle de bains. La maison est neuve.
Le terrain de la propriété est de 410 m².
Cette maison se trouve dans un quartier attractif. On y trouve une école primaire. Niveau transports en commun, il y a la gare Margaux à moins de 10 minutes à pied. Les autoroutes A630 et A10 et la nationale N10 sont accessibles à moins de 20 km. On trouve un tennis, une bibliothèque, trois commerces, une boulangerie, une boucherie-charcuterie et un bureau de poste à quelques minutes de la maison.
Son prix de vente est de 236 930 €.
N'hésitez pas à prendre contact avec Jonathan RAIMBAULT (tél : 07-69-40-4O-06) pour toute question sur le bien et sur les démarches à suivre. Maisons de la Côte Atlantique Bordeaux vous accompagne dans tous vos projets immobiliers et à toutes les étapes de l'achat.
Agence Maisons de la Côte Atlantique de Bordeaux (33000)
- Téléphone :
- 05 57 19 56 19
- Adressse :
- Homexpo - Pavillon HORIZON
33000 Bordeaux, France
