Maison neuve à
Margaux
(33460) Référence :
YO2405636_6
Prix du projet : Maison avec Terrain
prix 380 000 €
- 7 pièces
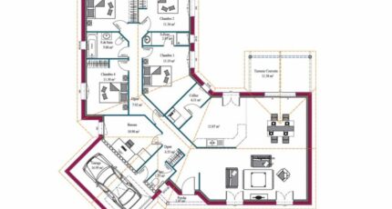
- 4 chambres
- Surface maison 146 m2
Maison de 7 pièces (146 m²) à vendre à Margaux
EMPLACEMENT PRIVILÉGIÉ - MAISON 7 PIÈCES NEUVE
À 6 km de la côte atlantique et à deux pas de Bordeaux, à vendre bénéficiant d'un emplacement privilégié dans Margaux (33460), votre agence Maisons de la Côte Atlantique Ayguemorte-les-Graves est heureuse de vous présenter cette maison de 7 pièces de plain-pied de 146 m².
Conçue de plain-pied, elle se divise en quatre chambres, une cuisine et deux salles de bains. Cette maison est neuve.
Le terrain du bien s'étend sur 700 m².
Cette maison se trouve dans un secteur recherché. On y trouve une école primaire. Côté transports en commun, il y a la gare Margaux à moins de 10 minutes à pied. Les autoroutes A630 et A10 et la nationale N10 sont accessibles à moins de 20 km. On trouve un tennis, une bibliothèque, trois commerces, une boulangerie, un bureau de poste et une boucherie-charcuterie à quelques minutes de la maison.
Elle est à vendre pour la somme de 380 000 €.
Contactez Yoann OMARI (O6-89-15-95-39) pour obtenir de plus amples informations sur la maison, sur les modalités de vente ou sur les démarches à suivre. Maisons de la Côte Atlantique Ayguemorte-les-Graves vous accompagne à toutes les étapes de votre projet et dans tous vos projets immobiliers.
Mentions légales
Idée de réalisation en modèle prêt à décorer sur l'un de nos terrains partenaires, sous réserve de disponibilités. Voir détails en agence.Agence Maisons de la Côte Atlantique de Ayguemorte-les-Graves (33640)
- Téléphone :
- 05 57 40 44 75
- Adressse :
- 1 allée de l'Agrostis
33640 Ayguemorte-les-Graves, France
