Maison neuve à
Marmande
(47200) Référence :
MM2328939_3
Prix du projet : Maison avec Terrain
prix 221 000 €
- 7 pièces
- 3 chambres
- Surface maison 101 m2
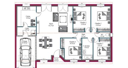
Maison de 7 pièces (101 m²) à vendre à Marmande
PROCHE CENTRE-VILLE - MAISON 7 PIÈCES NEUVE
Nous sommes ravis de vous proposer cette maison de 7 pièces de plain-pied de 101 m² proche du centre-ville de Marmande (47200).
Conçue de plain-pied, elle offre trois chambres, une cuisine et une salle de bains. Cette maison est neuve.
Le terrain de la propriété s'étend sur 392 m².
Des établissements scolaires de tous types (de la maternelle au lycée) se trouvent à moins de 10 minutes à pied, tout comme une crèche. Côté transports en commun, il y a la gare Marmande à quelques pas du bien. L'autoroute A62 est accessible à 8 km. On trouve un tennis, un bassin de natation, des boulangeries, des commerces, une poissonnerie, des boucheries-charcuteries et un bureau de poste dans les environs.
Elle est à vendre pour la somme de 221 000 €.
Contactez notre agence (Marine MAUREL : 06-88-10-74-51) pour obtenir de plus amples renseignements sur la maison, sur les modalités de vente et sur les démarches à suivre. Faites de vos projets immobiliers une réalité avec Maisons de la Côte Atlantique Marmande.
Agence Maisons de la Côte Atlantique de Marmande (47200)
- Téléphone :
- 05 53 84 47 83
- Adressse :
- Route de Bordeaux
47200 Marmande, France
