Maison neuve à
Marsas
(33620) Référence :
SPMAR607_3
Prix du projet : Maison avec Terrain
prix 329 000 €
- 7 pièces
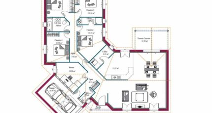
- 4 chambres
- Surface maison 146 m2
Prenez contact avec notre agence (PURY Sonia : O6-95-32-58-15) pour obtenir de plus amples renseignements sur la maison, sur les modalités de vente ou sur les démarches à suivre.
A 10 mn de ST André de Cubzac, Marsas (33620) :
Maison neuve 6 pièces en vente, 146 m² habitable avec terrasse couverte + garage sur 600 m² de terrain.
Elle est composée de quatre chambres dont une suite parentale, un bureau, d'une pièce de vie, d'une salle de bains avec WC séparé, terrasse couverte et un garage.
À proximité : gares, établissements scolaires, tennis et boulangerie.
Nationale N10 accessible à 1 km.
Cette maison de 6 pièces et garage est proposée à 329 000 €.
Concrétisez vos projets immobiliers avec Maisons de la Côte Atlantique Saint-André-de-Cubzac.
Agence Maisons de la Côte Atlantique de Saint-André-de-Cubzac (33240)
- Téléphone :
- 05 57 43 10 38
- Adressse :
- 16, Place du Champ de Foire
33240 Saint-André-de-Cubzac, France
