Maison neuve à
Mary-sur-Marne
(77440) Référence :
AR2288269_1
Prix du projet : Maison avec Terrain
prix 261 000 €
- 5 pièces
- 3 chambres
- Surface maison 90 m2
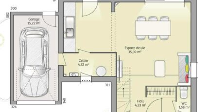
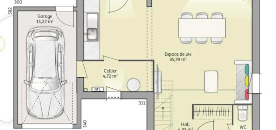
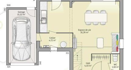
VENTE : maison de 5 pièces (90 m²) à Mary-sur-Marne
PROCHE DE MEAUX - MAISON 5 PIÈCES NEUVE
À proximité de la gare de Lizy-sur-Ourcq (Paris à 45 min par le Transilien P), à vendre à Mary-sur-Marne (77440), votre agence Maisons France Confort Magny-le-Hongre est ravie de vous proposer cette maison de 5 pièces de 90 m².
Cette maison possède 2 niveaux. Son intérieur se divise en trois chambres, une cuisine et une salle de bains. La maison est neuve.
Le terrain du bien s'étend sur 446 m².
L'École Primaire Joseph Kessel est implantée à moins de 10 minutes à pied. Niveau transports, on trouve six gares à moins de 10 minutes en voiture. Il y a un tennis et un supermarché à proximité du logement.
Elle est proposée à l'achat pour 261 000 €.
Prenez contact avec Alan RUBAL (07-68-78-63-84) pour plus de renseignements sur la maison ou sur les démarches à suivre.
Annonce proposée par un Agent Commercial Partenaire.
Mentions légales
Terrain proposé par un partenaire foncier selon disponibilités et autorisation de publicité au prix de 99 000 €. Hors droit d'enregistrement et frais de notaire. Maison proposée, avec un contrat de construction de maison individuelle, dans le cadre de la loi du 19/12/1990, au prix de 162 000 € (Hors branchements et raccordements, papiers peints, peintures, revêtement de sol dans les chambres, qui sont chiffrés dans les travaux qui restent à charge du client. Tarif modifiable sans préavis). Étiquette énergie : A. Différents modèles disponibles pour ce terrain. Assurances et garanties du constructeur comprises (RC professionnelle, décennale, dommage ouvrage).Agence Maisons France Confort de Magny-le-Hongre (77700)
- Téléphone :
- 01 84 80 92 96
- Adressse :
- 11 rue de Courtalin
77700 Magny-le-Hongre, France
