Maison neuve à
Mary-sur-Marne
(77440) Référence :
CY2432802_1
Prix du projet : Maison avec Terrain
prix 265 000 €
- 5 pièces
- 3 chambres
- Surface maison 90 m2
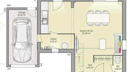
VENTE : maison T5 (90 m²) à Mary-sur-Marne
MAISON 5 PIÈCES NEUVE - PROCHE DE MEAUX
À 800 m de la gare de Lizy-sur-Ourcq (Paris à 45 min avec le Transilien P), nous vous proposons cette maison de 5 pièces de 90 m² et de 423 m² de terrain à Mary-sur-Marne (77440).
C'est une maison de 2 niveaux. Elle se divise en trois chambres, une cuisine et une salle de bains. La maison est neuve.
L'École Primaire Joseph Kessel est implantée à moins de 10 minutes à pied. Niveau transports en commun, on trouve six gares à moins de 10 minutes en voiture. Il y a un tennis et un supermarché à proximité.
Elle est proposée à l'achat pour 265 000 €.
Prenez contact avec notre agence (Cedric YAHIAOUI : 06-66-57-00-63) pour plus d'informations sur la propriété ou sur les démarches à suivre. Maisons France Confort Magny-le-Hongre est là pour vous accompagner dans tous vos projets immobiliers.
Annonce proposée par un Agent Commercial Partenaire.
Mentions légales
Terrain proposé par un partenaire foncier selon disponibilités et autorisation de publicité au prix de 105 000 €. Hors droit d'enregistrement et frais de notaire. Terrain + Maison proposés au prix de 265 000 € (Hors branchements et raccordements, papiers peints, peintures, revêtement de sol dans les chambres. Tarif modifiable sans préavis). Etiquette énergie : A. Différents modèles disponibles pour ce terrain. Assurances et garanties du constructeur (RC professionnelle, décennale, dommage ouvrage, garantie de remboursement de l'acompte, livraison à prix et délai convenu) : https://www.maisons-france-confort.fr/mentions-legales/. HEXAOM Services est enregistré auprès de l'ORIAS en tant que Courtier en financement, Niveau 1, sous le numéro 14001345.Agence Maisons France Confort de Magny-le-Hongre (77700)
- Téléphone :
- 01 84 80 92 96
- Adressse :
- 11 rue de Courtalin
77700 Magny-le-Hongre, France
