Maison neuve à
Meaux
(77100) Référence :
CY2355724_4
Prix du projet : Maison avec Terrain
prix 365 000 €
- 5 pièces
- 4 chambres
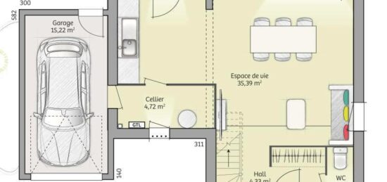
- Surface maison 120 m2
Meaux : maison T5 (120 m²) en vente
IDÉALEMENT SITUÉE - MAISON 5 PIÈCES NEUVE
En vente : proche de la gare (Paris à 25 min avec le Transilien P), idéalement située dans Meaux (77100), votre agence Maisons France Confort Magny-le-Hongre est heureuse de vous présenter cette maison de 5 pièces de plain-pied de 120 m² et de 400 m² de terrain.
Conçue de plain-pied, elle inclut quatre chambres, une cuisine et deux salles de bains. La maison est neuve.
Cette maison se trouve dans un quartier convoité. Il y a des établissements scolaires de tous niveaux (de la maternelle au lycée) à moins de 10 minutes à pied, tout comme une crèche. Côté transports en commun, on trouve sept gares à moins de 10 minutes en voiture. Il y a un bassin de natation, un tennis, une bibliothèque, des commerces, trois supermarchés, des boulangeries, quatre épiceries et des boucheries-charcuteries à proximité. Enfin, 2 marchés animent les environs.
Elle est proposée à l'achat pour 365 000 €.
Contactez notre constructeur (YAHIAOUI Cedric : 06-66-57-00-63) pour toute information sur la maison.
Annonce proposée par un Agent Commercial Partenaire.
Mentions légales
Terrain proposé par un partenaire foncier selon disponibilités et autorisation de publicité au prix de 139 000 €. Hors droit d'enregistrement et frais de notaire. Maison proposée, avec un contrat de construction de maison individuelle, dans le cadre de la loi du 19/12/1990, au prix de 226 000 € (Hors branchements et raccordements, papiers peints, peintures, revêtement de sol dans les chambres, qui sont chiffrés dans les travaux qui restent à charge du client. Tarif modifiable sans préavis). Étiquette énergie : A. Différents modèles disponibles pour ce terrain. Assurances et garanties du constructeur comprises (RC professionnelle, décennale, dommage ouvrage).Agence Maisons France Confort de Magny-le-Hongre (77700)
- Téléphone :
- 01 84 80 92 96
- Adressse :
- 11 rue de Courtalin
77700 Magny-le-Hongre, France
