Maison neuve à
Meaux
(77100) Référence :
CY2355724_8
Prix du projet : Maison avec Terrain
prix 365 000 €
- 5 pièces
- 3 chambres
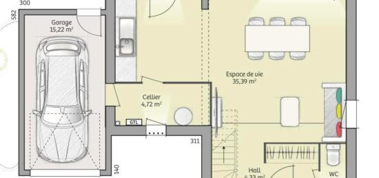
- Surface maison 90 m2
Meaux : maison T5 (90 m²) en vente
IDÉALEMENT SITUÉE - MAISON 5 PIÈCES NEUVE
À quelques minutes du Transilien P (25 min de Paris), nous vous présentons cette maison de 5 pièces de plain-pied de 90 m² idéalement située dans Meaux (77100).
Elle propose trois chambres, une cuisine et une salle de bains. Cette maison est neuve.
Le terrain de la propriété est de 400 m².
Cette maison se trouve dans un quartier attractif. Il y a des établissements scolaires de tous types à moins de 10 minutes à pied, tout comme une crèche. Côté transports, on trouve sept gares à moins de 10 minutes en voiture. Il y a un bassin de natation, un tennis, une bibliothèque, des commerces, trois supermarchés, des boulangeries, quatre épiceries et des boucheries-charcuteries à quelques minutes. Enfin, 2 marchés animent les environs.
Elle est proposée à l'achat pour 365 000 €.
Contactez notre agence (YAHIAOUI Cedric : 06-66-57-00-63) pour plus d'informations sur la propriété ou sur les modalités de vente. Maisons France Confort Magny-le-Hongre vous accompagne à toutes les étapes de l'achat et dans toutes vos démarches.
Annonce proposée par un Agent Commercial Partenaire.
Mentions légales
Terrain proposé par un partenaire foncier selon disponibilités et autorisation de publicité au prix de 139 000 €. Hors droit d'enregistrement et frais de notaire. Maison proposée, avec un contrat de construction de maison individuelle, dans le cadre de la loi du 19/12/1990, au prix de 226 000 € (Hors branchements et raccordements, papiers peints, peintures, revêtement de sol dans les chambres, qui sont chiffrés dans les travaux qui restent à charge du client. Tarif modifiable sans préavis). Étiquette énergie : A. Différents modèles disponibles pour ce terrain. Assurances et garanties du constructeur comprises (RC professionnelle, décennale, dommage ouvrage).Agence Maisons France Confort de Magny-le-Hongre (77700)
- Téléphone :
- 01 84 80 92 96
- Adressse :
- 11 rue de Courtalin
77700 Magny-le-Hongre, France
