Maison neuve à
Médan
(78670) Référence :
CDS2328650_1
Prix du projet : Maison avec Terrain
prix 572 873 €
- 5 pièces
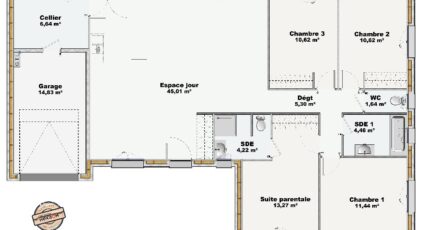
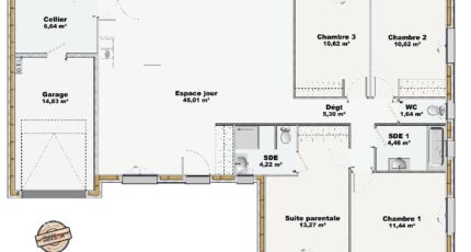
- 4 chambres
- Surface maison 113 m2
L'agence Maisons France Confort de Coignières propose ce magnifique projet, très attractif pour son lieu, ses prestations et son prix avec par exemple ce modèle plain-pied (photo non contractuelle). Découvrez nos modèles en ossature bois conçus pour aller au-delà des standards actuels et vous offrir une maison dans l'air du temps. Grace à une conception optimisée et une isolation renforcée, nos maisons garantissent un habitat à la fois écologique et économique. En limitant les perditions thermiques et en optimisant la gestion de l'énergie, votre maison Maisons France Confort vous permet de réaliser des économies durables tout en contribuant à la transition énergétique.
Cette maison allie design et convivialité. La distribution de cette maison optimise l'espace autour d'une cuisine ouverte sur le séjour qui offre un espace de vie spacieux et harmonieux de plus de 45 m², une suite parentale avec dressing et salle d'eau privative, 3 chambres, 1 salle de bains, 1 WC indépendant et un cellier. Norme RE2020, chauffage PAC, domotique sur les volets roulants... Modèle personnalisable en fonction de votre mode de vie, vos envies et budget.
Les plus Maisons France Confort : une expérience solide de presque 100 ans, la maîtrise de projets sur mesure, la sécurité du premier constructeur national.
Le prix de cette annonce inclus le terrain, le modèle de maison proposé en exemple ainsi que tous les frais de viabilisation, raccordements, évacuation de terres excédentaires, accès chantier etc...Pour rappel les frais de notaire sur le terrain et les taxes, les clôtures, l'ameublement et la décoration ne sont pas inclus.
Pour d'avantage de précisions et pour un devis de construction personnalisé avant visite du terrain contactez votre agence Maisons France Confort de Coignières au 01.34.61.12.22 ou 06.27.06.74.64
Annonce proposée par un Agent Commercial Partenaire.
Mentions légales
Terrain proposé par un partenaire foncier selon disponibilités et autorisation de publicité au prix de 225 000 €. Hors droit d'enregistrement et frais de notaire. Maison proposée, avec un contrat de construction de maison individuelle, dans le cadre de la loi du 19/12/1990, au prix de 347 873 € (Hors branchements et raccordements, papiers peints, peintures, revêtement de sol dans les chambres, qui sont chiffrés dans les travaux qui restent à charge du client. Tarif modifiable sans préavis). Étiquette énergie : A. Différents modèles disponibles pour ce terrain. Assurances et garanties du constructeur comprises (RC professionnelle, décennale, dommage ouvrage).Agence Maisons France Confort de Coignières (78310)
- Téléphone :
- 01 34 61 12 22
- Adressse :
- Domexpo Ouest
78310 Coignières, France
