Maison neuve à
Méry-sur-Marne
(77730) Référence :
CM2304860_2
Prix du projet : Maison avec Terrain
prix 389 000 €
- 6 pièces
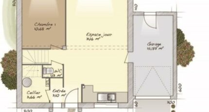
- 4 chambres
- Surface maison 118 m2
Méry-sur-Marne : maison T6 (98 m²) en vente
MAISON 6 PIÈCES NEUVE - PROCHE DE MEAUX
À vendre : proche du Transilien P (gare de Nanteuil-Saâcy, 50 min de Paris), ayez le coup de coeur pour cette maison de 6 pièces de 98 m² à Méry-sur-Marne (77730). Son intérieur compte quatre chambres, une cuisine et une salle de bains.
Le terrain de cette maison s'étend sur 678 m².
Cette maison possède 2 niveaux. Elle est neuve.
Une école élémentaire est implantée dans le quartier. Côté transports en commun, on trouve les gares Nanteuil-Saâcy, La Ferté-sous-Jouarre et Nogent-l'Artaud-Charly à moins de 10 minutes en voiture. Il y a deux boulangeries, un commerce, deux boucheries-charcuteries, une épicerie et un bureau de poste dans les environs.
Elle est proposée à l'achat pour 389 000 €.
Prenez contact avec Christophe MONTANIER (06-10-23-51-22) pour toute information sur cette maison, sur les démarches à suivre ou sur les modalités de vente.
Annonce proposée par un Agent Commercial Partenaire.
Mentions légales
Terrain proposé par un partenaire foncier selon disponibilités et autorisation de publicité au prix de 110 000 €. Hors droit d'enregistrement et frais de notaire. Terrain + Maison proposés au prix de 279 000 € (Hors branchements et raccordements, papiers peints, peintures, revêtement de sol dans les chambres. Tarif modifiable sans préavis). Etiquette énergie : A. Différents modèles disponibles pour ce terrain. Assurances et garanties du constructeur (RC professionnelle, décennale, dommage ouvrage, garantie de remboursement de l'acompte, livraison à prix et délai convenu) : https://www.maisons-balency.fr/informations-legales/. HEXAOM Services est enregistré auprès de l'ORIAS en tant que Courtier en financement, Niveau 1, sous le numéro 14001345.Agence Maisons Balency de Saint-Maur-des-Fossés (94100)
- Téléphone :
- 01 87 36 85 37
- Adressse :
- 12 avenue de la république
94100 Saint-Maur-des-Fossés, France
