Maison neuve à
Mézens
(81800) Référence :
JT2245513_2
Prix du projet : Maison avec Terrain
prix 224 732 €
- 4 pièces
- 3 chambres
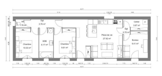
- Surface maison 85 m2
Maisons France Confort Albi, spécialiste de la construction traditionnelle et à ossature bois, vous présente ce modèle plain-pied avec garage intégré et 3 chambres au design contemporain, l'un des incontournables de la gamme Open.
Avec ses 85 m² intelligemment agencés, ce plain-pied a été conçu pour répondre à toutes vos attentes. De larges baies vitrées offrent une vue dégagée et un accès direct au jardin, tout en inondant de lumière la pièce de vie de près de 40 m².
Côté nuit, vous trouverez trois chambres de plus de 9 m², chacune équipée d'un dressing, ainsi qu'une salle de bains avec baignoire. Un WC séparé, un cellier et un garage intégré de 15 m² viennent compléter cet aménagement pensé pour le confort au quotidien.
Fonctionnelle et élégante, cette maison optimise chaque mètre carré grâce à ses nombreux rangements, offrant ainsi un cadre de vie épuré et agréable.
📞 N'attendez plus pour concrétiser votre projet : contactez Maisons France Confort Albi au 05 63 43 56 40 et découvrez nos offres sur tout le département.
Frais de notaire et annexes non inclus dans le prix indiqué.
Annonce proposée par un Agent Commercial Partenaire.
Mentions légales
Terrain proposé par un partenaire foncier selon disponibilités et autorisation de publicité au prix de 90 000 €. Hors droit d'enregistrement et frais de notaire. Maison proposée, avec un contrat de construction de maison individuelle, dans le cadre de la loi du 19/12/1990, au prix de 134 732 € (Hors branchements et raccordements, papiers peints, peintures, revêtement de sol dans les chambres, qui sont chiffrés dans les travaux qui restent à charge du client. Tarif modifiable sans préavis). Étiquette énergie : A. Différents modèles disponibles pour ce terrain. Assurances et garanties du constructeur comprises (RC professionnelle, décennale, dommage ouvrage).Agence Maisons France Confort de Albi (81000)
- Téléphone :
- 05 63 43 56 40
- Adressse :
- 187 avenue Colonel Teyssier
81000 Albi, France
