Maison neuve à
Mitry-Mory
(77290) Référence :
CY2457879_1
Prix du projet : Maison avec Terrain
prix 359 000 €
- 5 pièces
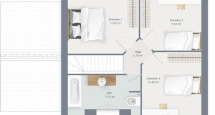
- 3 chambres
- Surface maison 80 m2
VENTE d'une maison de 5 pièces (80 m²) à Quincy-Voisins
IDÉALEMENT SITUÉE - MAISON 5 PIÈCES NEUVE
Proche du Transilien P (gare d'Esbly, 30 min de Paris), nous sommes ravis de vous présenter cette maison de 5 pièces de 80 m² et de 800 m² de terrain idéalement située dans Quincy-Voisins (77860).
Il s'agit d'une maison de 2 niveaux. Elle propose trois chambres, une cuisine et une salle de bains. La maison est neuve.
Cette maison se trouve dans un secteur convoité. Il y a des écoles primaires à moins de 10 minutes à pied. Côté transports en commun, on trouve la ligne de RER A (Chessy-Marne-La-Vallée) ainsi que huit gares à moins de 10 minutes en voiture. On trouve un tennis, une bibliothèque, un commerce, une épicerie, une supérette, un bureau de poste et deux boucheries-charcuteries à quelques minutes de la maison.
Son prix de vente est de 359 000 €.
N'hésitez pas à prendre contact avec Cedric YAHIAOUI (tél : 06-66-57-00-63) pour toute question sur le bien, sur les démarches à suivre ou sur les modalités de vente.
Annonce proposée par un Agent Commercial Partenaire.
Mentions légales
Terrain proposé par un partenaire foncier selon disponibilités et autorisation de publicité au prix de 169 000 €. Hors droit d'enregistrement et frais de notaire. Terrain + Maison proposés au prix de 359 000 € (Hors branchements et raccordements, papiers peints, peintures, revêtement de sol dans les chambres. Tarif modifiable sans préavis). Etiquette énergie : A. Différents modèles disponibles pour ce terrain. Assurances et garanties du constructeur (RC professionnelle, décennale, dommage ouvrage, garantie de remboursement de l'acompte, livraison à prix et délai convenu) : https://www.maisons-france-confort.fr/mentions-legales/. HEXAOM Services est enregistré auprès de l'ORIAS en tant que Courtier en financement, Niveau 1, sous le numéro 14001345.Agence Maisons France Confort de Mareuil-lès-Meaux (77100)
- Téléphone :
- 01 60 09 28 30
- Adressse :
- Domexpo Est Village La Hayette
77100 Mareuil-lès-Meaux, France
