Maison neuve à
Moisson
(78840) Référence :
MH2295613_2
Prix du projet : Maison avec Terrain
prix 311 000 €
- 5 pièces
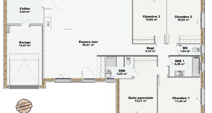
- 4 chambres
- Surface maison 113 m2
VENTE : maison de 5 pièces (113 m²) à Moisson
IDÉALEMENT SITUÉE - MAISON 5 PIÈCES NEUVE
Le terrain du bien s'étend sur 805 m².
Cette maison se trouve dans un secteur prisé. Plusieurs établissements scolaires (élémentaire, collège et lycée) sont implantés à moins de 10 minutes en voiture, tout comme une crèche à moins de 10 minutes à pied. Côté transports en commun, on trouve les gares Bonnières-sur-Seine et Rosny-sur-Seine à moins de 10 minutes en voiture. Il y a des tennis, des bibliothèques, un port de plaisance, un bassin de natation, des boulangeries, des commerces, des supermarchés, des épiceries et des boucheries-charcuteries dans les environs. Le marché Place de la Libération a lieu chaque dimanche matin.
Elle est proposée à l'achat pour 311 000 €.
Prenez contact avec Morgan HOUDEBINE (06-47-37-71-15) pour toute information sur la maison ou sur les modalités de vente. Maisons France Confort Conflans-Sainte-Honorine vous accompagne dans toutes vos démarches et à toutes les étapes de votre projet.
Annonce proposée par un Agent Commercial Partenaire.
Mentions légales
Terrain proposé par un partenaire foncier selon disponibilités et autorisation de publicité au prix de 96 000 €. Hors droit d'enregistrement et frais de notaire. Maison proposée, avec un contrat de construction de maison individuelle, dans le cadre de la loi du 19/12/1990, au prix de 215 000 € (Hors branchements et raccordements, papiers peints, peintures, revêtement de sol dans les chambres, qui sont chiffrés dans les travaux qui restent à charge du client. Tarif modifiable sans préavis). Étiquette énergie : A. Différents modèles disponibles pour ce terrain. Assurances et garanties du constructeur comprises (RC professionnelle, décennale, dommage ouvrage).Agence Maisons France Confort de Conflans-Sainte-Honorine (78700)
- Téléphone :
- 01 34 46 20 83
- Adressse :
- 55/57 rue Maurice Berteaux
78700 Conflans-Sainte-Honorine, France
