Maison neuve à
Moncheaux (59283) Référence : DC2290854_3

Prix du projet : Maison avec Terrain

prix 395 000 €

  • 6 pièces
  • 4 chambres
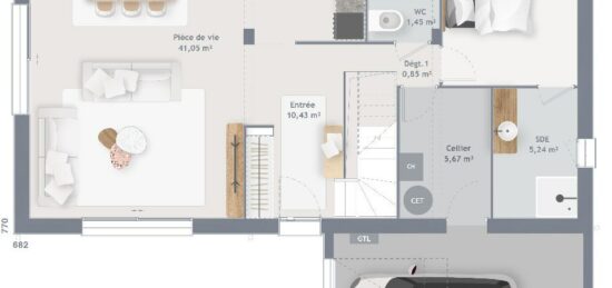
  • Surface maison 125 m2

Moncheaux - Maison 6 pièces (125 m²)

Prix : 395 000 €
Surface maison : 125 m²
Surface terrain : 1 010 m²
Niveaux : 2

Description :
Maison neuve de 2 niveaux avec quatre chambres, une cuisine et une salle de bains.

Environnement et commodités :

Écoles : École primaire dans le quartier

Transports : 9 gares à moins de 10 minutes en voiture

Accès routier : Autoroutes A21, A1 et A23 à moins de 10 km

Commodités : Bibliothèque, commerce, boulangerie, deux boucheries-charcuteries à proximité

Contact :
David CHAMBAULT - 06 47 48 05 47
Maisons France Confort Lille vous accompagne dans toutes les étapes de votre projet immobilier.

Mentions légales

Terrain proposé par un partenaire foncier selon disponibilités et autorisation de publicité au prix de 142 000 €. Hors droit d'enregistrement et frais de notaire. Terrain + Maison proposés au prix de 253 000 € (Hors branchements et raccordements, papiers peints, peintures, revêtement de sol dans les chambres. Tarif modifiable sans préavis). Etiquette énergie : A. Différents modèles disponibles pour ce terrain. Assurances et garanties du constructeur (RC professionnelle, décennale, dommage ouvrage, garantie de remboursement de l'acompte, livraison à prix et délai convenu) : https://www.maisons-france-confort.fr/mentions-legales/. HEXAOM Services est enregistré auprès de l'ORIAS en tant que Courtier en financement, Niveau 1, sous le numéro 14001345.

Contactez l'agence de Lille

03 20 48 50 23

    * Champs obligatoires

    Vos informations sont traitées par HEXAOM et transmises à un conseiller commercial qui vous contactera afin de répondre à votre demande. Les plans et images présentés sur notre site sont la propriété d’HEXAOM et ne peuvent pas être reproduits sans son accord. Pour retrouver notre politique de protection des données personnelles et exercer vos droits conformément à la « loi informatique et liberté » cliquez-ici.