Maison neuve à
Montagnac
(34530) Référence :
NM2384274_1
Prix du projet : Maison avec Terrain
prix 345 000 €
- 6 pièces
- 5 chambres
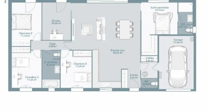
- Surface maison 125 m2
Maison Optima de 125 m² proposée ici sur 515 m² de terrain à Montagnac.
Elle dispose de 4 chambres dont la suite parentale, une salle de bain et wc séparés, un espace de vie convivial et lumineux, et un cellier avec accès au garage.
RE2020 + GARANTIES CCMI COMPRISES.
N'hésitez pas à prendre contact avec notre agence Maisons France Confort St Gely du Fesc : 04-67-66-49-65 pour obtenir de plus amples renseignements.
Annonce proposée par un Agent Commercial Partenaire.
Mentions légales
Terrain proposé par un partenaire foncier selon disponibilités et autorisation de publicité au prix de 130 000 €. Hors droit d'enregistrement et frais de notaire. Terrain + Maison proposés au prix de 345 000 € (Hors branchements et raccordements, papiers peints, peintures, revêtement de sol dans les chambres. Tarif modifiable sans préavis). Etiquette énergie : A. Différents modèles disponibles pour ce terrain. Assurances et garanties du constructeur (RC professionnelle, décennale, dommage ouvrage, garantie de remboursement de l'acompte, livraison à prix et délai convenu) : https://www.maisons-france-confort.fr/mentions-legales/. HEXAOM Services est enregistré auprès de l'ORIAS en tant que Courtier en financement, Niveau 1, sous le numéro 14001345.Agence Maisons France Confort de Saint-Gély-du-Fesc (34980)
- Téléphone :
- 04 67 66 49 65
- Adressse :
- 22 rue des lavandes
34980 Saint-Gély-du-Fesc, France
