Maison neuve à
Montauban
(82000) Référence :
CE2290429_3
Prix du projet : Maison avec Terrain
prix 235 784 €
- 5 pièces
- 4 chambres
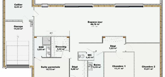
- Surface maison 101 m2
Maison de 5 pièces (101 m²) à vendre à Montauban avec l'agence Maisons France Confort de Tournefeuille au 05 61 16 44 77
EMPLACEMENT PRIVILÉGIÉ - MAISON 5 PIÈCES NEUVE
Laissez-vous charmer par cette maison de 5 pièces de plain-pied de 101 m², bénéficiant d'un emplacement privilégié à Montauban (82000).
Son intérieur comprend quatre chambres, une cuisine et une salle de bains. La maison est neuve.
Le terrain de la propriété s'étend sur 614 m².
Située dans un quartier convoité, cette maison se trouve à proximité de cinq établissements scolaires, accessibles à moins de 10 minutes à pied, ainsi que d'une structure d'accueil pour les enfants en bas âge. Côté transports en commun, la gare Montauban Ville Bourbon est à moins de 10 minutes en voiture. L'autoroute A20 est accessible à 4 km. À proximité, vous trouverez un supermarché, deux boulangeries, quatre boucheries-charcuteries et deux épiceries.
Le prix de vente est de 235 784 €.
Contactez notre agence Maisons France Confort de Tournefeuille au 05 61 16 44 77 pour toute question sur la maison ou sur les démarches à suivre. Donnez vie à vos projets immobiliers avec Maisons France Confort Tournefeuille.
Annonce proposée par un Agent Commercial Partenaire.
Mentions légales
Terrain proposé par un partenaire foncier selon disponibilités et autorisation de publicité au prix de 64 000 €. Hors droit d'enregistrement et frais de notaire. Maison proposée, avec un contrat de construction de maison individuelle, dans le cadre de la loi du 19/12/1990, au prix de 171 784 € (Hors branchements et raccordements, papiers peints, peintures, revêtement de sol dans les chambres, qui sont chiffrés dans les travaux qui restent à charge du client. Tarif modifiable sans préavis). Étiquette énergie : A. Différents modèles disponibles pour ce terrain. Assurances et garanties du constructeur comprises (RC professionnelle, décennale, dommage ouvrage).Agence Maisons France Confort de Tournefeuille (31170)
- Téléphone :
- 05 61 16 47 77
- Adressse :
- 114 chemin de Larramet
31170 Tournefeuille, France
