Maison neuve à
Montignargues (30190) Référence : PP2361487_3

Prix du projet : Maison avec Terrain

prix 269 300 €

  • 6 pièces
  • 3 chambres
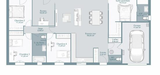
  • Surface maison 83 m2

VENTE : maison de 6 pièces (83 m²) à Montignargues
IDÉALEMENT SITUÉE - MAISON 6 PIÈCES NEUVE
À vendre : à 43 km de la côte méditerranéenne et à 15 km de Nîmes, découvrez cette maison de 6 pièces de plain-pied de 83 m², idéalement située dans Montignargues (30190). Son intérieur offre trois chambres, une cuisine et une salle de bains.
Le terrain de la maison s'étend sur 635 m².
Cette maison est neuve.
Cette maison se situe dans un secteur convoité. On y trouve une école élémentaire. Côté transports en commun, on trouve quatre gares à moins de 10 minutes en voiture. Il y a un accès à la nationale N106 à 5 km.
Elle est proposée à l'achat pour 269 300 €.
Contactez Pascale PIEL (tél : O6-O1-26-64-83) pour obtenir de plus amples informations sur la propriété, sur les modalités de vente et sur les démarches à suivre.

Mentions légales

Terrain proposé par un partenaire foncier selon disponibilités et autorisation de publicité au prix de 114 900 €. Hors droit d'enregistrement et frais de notaire. Terrain + Maison proposés au prix de 154 400 € (Hors branchements et raccordements, papiers peints, peintures, revêtement de sol dans les chambres. Tarif modifiable sans préavis). Etiquette énergie : A. Différents modèles disponibles pour ce terrain. Assurances et garanties du constructeur (RC professionnelle, décennale, dommage ouvrage, garantie de remboursement de l'acompte, livraison à prix et délai convenu) : https://www.maisons-balency.fr/informations-legales/. HEXAOM Services est enregistré auprès de l'ORIAS en tant que Courtier en financement, Niveau 1, sous le numéro 14001345.

Contactez l'agence de Uzès

04 66 57 25 45

    * Champs obligatoires

    Vos informations sont traitées par HEXAOM et transmises à un conseiller commercial qui vous contactera afin de répondre à votre demande. Les plans et images présentés sur notre site sont la propriété d’HEXAOM et ne peuvent pas être reproduits sans son accord. Pour retrouver notre politique de protection des données personnelles et exercer vos droits conformément à la « loi informatique et liberté » cliquez-ici.