Maison neuve à
Veneux-les-Sablons
(77250) Référence :
SH2351007_1
Prix du projet : Maison avec Terrain
prix 285 646 €
- 5 pièces
- 3 chambres
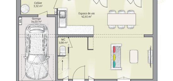
- Surface maison 80 m2
VENTE : maison de 5 pièces (80 m²) à Moret-Loing-et-Orvanne
MAISON 5 PIÈCES NEUVE
En vente : à proximité de la gare de Saint-Mammès (Paris à 50 min avec le Transilien R), ayez le coup de coeur pour cette maison de 5 pièces de 80 m² à Moret-Loing-et-Orvanne (77250).
Cette maison compte 2 niveaux. Son intérieur compte trois chambres, une cuisine et une salle de bains. Cette maison est neuve.
Le terrain du bien s'étend sur 431 m².
L'École Maternelle les Lilas est implantée à moins de 10 minutes à pied. Côté transports en commun, il y a 10 gares à moins de 10 minutes en voiture. On trouve un tennis et une bibliothèque à quelques minutes du logement.
Elle est proposée à l'achat pour 285 646 €.
Prenez contact avec Stéphan HOURMANT (07-86-01-34-48) pour toute information sur cette propriété, sur les modalités de vente ou sur les démarches à suivre.
Annonce proposée par un Agent Commercial Partenaire.
Mentions légales
Terrain proposé par un partenaire foncier selon disponibilités et autorisation de publicité au prix de 113 900 €. Hors droit d'enregistrement et frais de notaire. Terrain + Maison proposés au prix de 285 646 € (Hors branchements et raccordements, papiers peints, peintures, revêtement de sol dans les chambres. Tarif modifiable sans préavis). Etiquette énergie : A. Différents modèles disponibles pour ce terrain. Assurances et garanties du constructeur (RC professionnelle, décennale, dommage ouvrage, garantie de remboursement de l'acompte, livraison à prix et délai convenu) : https://www.maisons-france-confort.fr/mentions-legales/. HEXAOM Services est enregistré auprès de l'ORIAS en tant que Courtier en financement, Niveau 1, sous le numéro 14001345.Agence Maisons France Confort de Nemours (77140)
- Téléphone :
- 01 64 28 58 32
- Adressse :
- 16 Avenue Carnot
77140 Nemours, France
