Maison neuve à
Mormant
(77720) Référence :
CY2290501_1
Prix du projet : Maison avec Terrain
prix 260 000 €
- 5 pièces
- 3 chambres
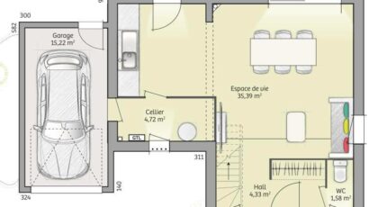
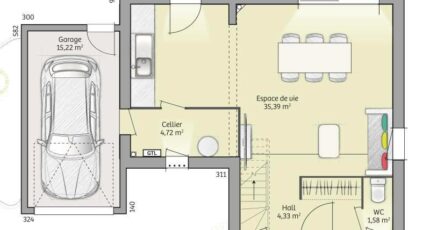
- Surface maison 90 m2
VENTE d'une maison de 5 pièces (90 m²) à Mormant
PROCHE GARE - MAISON 5 PIÈCES NEUVE
Au pied du Transilien P (35 min de Paris), nous vous présentons cette maison de 5 pièces de 90 m² dans Mormant (77720), proche de la gare. Elle compte trois chambres, une cuisine et une salle de bains.
Le terrain du bien s'étend sur 550 m².
C'est une maison de 2 niveaux. Elle est neuve.
Le Collège Nicolas Fouquet, l'École Maternelle Charles Perrault et l'École Élémentaire Jean de la Fontaine sont implantés à moins de 10 minutes à pied. Niveau transports en commun, il y a la gare Mormant dans un rayon de 1 km. On trouve un tennis, deux boulangeries, deux supermarchés, des commerces, un bureau de poste et quatre épiceries dans les environs. Ne manquez pas le marché Rue Leclerc chaque jeudi matin.
Elle est à vendre pour la somme de 260 000 €.
Contactez notre agence (YAHIAOUI Cedric : 06-66-57-00-63) pour obtenir de plus amples renseignements sur le bien. Maisons France Confort Magny-le-Hongre vous accompagne à toutes les étapes de l'achat et dans toutes vos démarches.
Annonce proposée par un Agent Commercial Partenaire.
Mentions légales
Terrain proposé par un partenaire foncier selon disponibilités et autorisation de publicité au prix de 85 000 €. Hors droit d'enregistrement et frais de notaire. Maison proposée, avec un contrat de construction de maison individuelle, dans le cadre de la loi du 19/12/1990, au prix de 175 000 € (Hors branchements et raccordements, papiers peints, peintures, revêtement de sol dans les chambres, qui sont chiffrés dans les travaux qui restent à charge du client. Tarif modifiable sans préavis). Étiquette énergie : A. Différents modèles disponibles pour ce terrain. Assurances et garanties du constructeur comprises (RC professionnelle, décennale, dommage ouvrage).Agence Maisons France Confort de Magny-le-Hongre (77700)
- Téléphone :
- 01 84 80 92 96
- Adressse :
- 11 rue de Courtalin
77700 Magny-le-Hongre, France
