Maison neuve à
Nanteuil-lès-Meaux (77100) Référence : AR2302309_4

Prix du projet : Maison avec Terrain

prix 293 000 €

  • 6 pièces
  • 4 chambres
  • Surface maison 115 m2

VENTE : maison de 6 pièces (115 m²) à Maisoncelles-en-Brie
IDÉALEMENT SITUÉE - MAISON 6 PIÈCES NEUVE
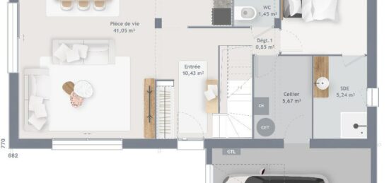
À proximité de la gare de Faremoutiers-Pommeuse (Paris à 50 min par le Transilien P), nous sommes ravis de vous présenter en vente, idéalement située dans Maisoncelles-en-Brie (77580), cette maison de 6 pièces de 115 m² et de 500 m² de terrain. Son intérieur offre quatre chambres, une cuisine et deux salles de bains.
Cette maison compte 2 niveaux. Elle est neuve.
Cette maison se situe dans un secteur convoité. On y trouve une école primaire. Niveau transports en commun, on trouve six gares à moins de 10 minutes en voiture. Il y a un tennis, un commerce et une poissonnerie dans les environs.
Son prix de vente est de 293 000 €.
Contactez notre agence (Alan RUBAL : 07-68-78-63-84) pour toute question sur la maison ou sur les modalités de vente.

Annonce proposée par un Agent Commercial Partenaire.

Mentions légales

Terrain proposé par un partenaire foncier selon disponibilités et autorisation de publicité au prix de 86 000 €. Hors droit d'enregistrement et frais de notaire. Terrain + Maison proposés au prix de 207 000 € (Hors branchements et raccordements, papiers peints, peintures, revêtement de sol dans les chambres. Tarif modifiable sans préavis). Etiquette énergie : A. Différents modèles disponibles pour ce terrain. Assurances et garanties du constructeur (RC professionnelle, décennale, dommage ouvrage, garantie de remboursement de l'acompte, livraison à prix et délai convenu) : https://www.maisons-france-confort.fr/mentions-legales/. HEXAOM Services est enregistré auprès de l'ORIAS en tant que Courtier en financement, Niveau 1, sous le numéro 14001345.

Contactez l'agence de Mareuil-lès-Meaux

01 60 09 28 30

    * Champs obligatoires

    Vos informations sont traitées par HEXAOM et transmises à un conseiller commercial qui vous contactera afin de répondre à votre demande. Les plans et images présentés sur notre site sont la propriété d’HEXAOM et ne peuvent pas être reproduits sans son accord. Pour retrouver notre politique de protection des données personnelles et exercer vos droits conformément à la « loi informatique et liberté » cliquez-ici.