Maison neuve à
Neuville-sur-Sarthe (72190) Référence : LL2423276_5

Prix du projet : Maison avec Terrain

prix 409 000 €

  • 4 pièces
  • 4 chambres
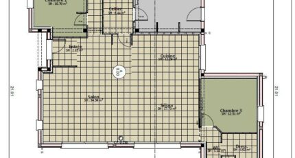
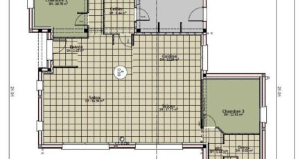
  • Surface maison 143 m2

Neuville-sur-Sarthe : maison de 4 pièces (143 m²) en vente
IDÉALEMENT SITUÉE - MAISON 4 PIÈCES NEUVE
À vendre : située à quelques kilomètres du Mans, découvrez cette maison de 4 pièces de plain-pied de 143 m², idéalement située dans Neuville-sur-Sarthe (72190).
Son intérieur se divise en quatre chambres, une cuisine et deux salles de bains. Cette maison est neuve.
Le terrain du bien est de 567 m².
La maison est située dans un quartier prisé. L'École Primaire Publique Léonard de Vinci est implantée à moins de 10 minutes à pied. Côté transports, il y a la gare Neuville-sur-Sarthe juste à côté. On trouve un accès à l'autoroute A11 à 3 km. On trouve un tennis, une boulangerie, un commerce, une épicerie et une boucherie-charcuterie à quelques minutes à peine.
Elle est à vendre pour la somme de 409 000 €.
Contactez Luc LIVET (07-77-76-37-30) pour toute information sur le bien ou sur les démarches à suivre. Faites de vos projets immobiliers une réalité avec Maine Construction Le Mans.

Mentions légales

Terrain proposé par un partenaire foncier selon disponibilités et autorisation de publicité au prix de 78 500 €. Hors droit d'enregistrement et frais de notaire. Terrain + Maison proposés au prix de 409 000 € (Hors branchements et raccordements, papiers peints, peintures, revêtement de sol dans les chambres. Tarif modifiable sans préavis). Etiquette énergie : A. Différents modèles disponibles pour ce terrain. Assurances et garanties du constructeur (RC professionnelle, décennale, dommage ouvrage, garantie de remboursement de l'acompte, livraison à prix et délai convenu) : https://www.maine-construction.fr/mentions-legales/. HEXAOM Services est enregistré auprès de l'ORIAS en tant que Courtier en financement, Niveau 1, sous le numéro 14001345.

Contactez l'agence de Le Mans

02 43 21 93 33

    * Champs obligatoires

    Vos informations sont traitées par HEXAOM et transmises à un conseiller commercial qui vous contactera afin de répondre à votre demande. Les plans et images présentés sur notre site sont la propriété d’HEXAOM et ne peuvent pas être reproduits sans son accord. Pour retrouver notre politique de protection des données personnelles et exercer vos droits conformément à la « loi informatique et liberté » cliquez-ici.