Maison neuve à
Noiseau
(94880) Référence :
AR2356201_5
Prix du projet : Maison avec Terrain
prix 405 500 €
- 5 pièces
- 4 chambres
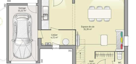
- Surface maison 98 m2
VENTE : maison de 5 pièces (98 m²) à Noiseau
MAISON 5 PIÈCES NEUVE - PROCHE DE PARIS
À proximité du RER A (station Sucy-Bonneuil, 20 min de Paris), en vente à Noiseau (94880), nous vous proposons cette maison de 5 pièces de 98 m².
Cette maison possède 2 niveaux. Elle est composée de quatre chambres, d'une cuisine et d'une salle de bains. La maison est neuve.
Le terrain du bien s'étend sur 304 m².
L'École Élémentaire Jean Jaurès et l'École Maternelle Albert Camus sont implantées à moins de 10 minutes à pied. Niveau transports en commun, il y a le RER A, E, D et C ainsi que 16 gares à moins de 10 minutes en voiture. On trouve un tennis, une bibliothèque, quatre commerces, un supermarché et une épicerie à quelques minutes.
Elle est à vendre pour la somme de 405 500 €.
Contactez notre agence Thomas ROUSSEL TOUATI (06-67-03-68-69) pour tout renseignement sur cette maison. Maisons France Confort Magny-le-Hongre est là pour vous accompagner à toutes les étapes de votre projet.
Annonce proposée par un Agent Commercial Partenaire.
Mentions légales
Terrain proposé par un partenaire foncier selon disponibilités et autorisation de publicité au prix de 229 000 €. Hors droit d'enregistrement et frais de notaire. Maison proposée, avec un contrat de construction de maison individuelle, dans le cadre de la loi du 19/12/1990, au prix de 176 500 € (Hors branchements et raccordements, papiers peints, peintures, revêtement de sol dans les chambres, qui sont chiffrés dans les travaux qui restent à charge du client. Tarif modifiable sans préavis). Étiquette énergie : A. Différents modèles disponibles pour ce terrain. Assurances et garanties du constructeur comprises (RC professionnelle, décennale, dommage ouvrage).Agence Maisons France Confort de Magny-le-Hongre (77700)
- Téléphone :
- 01 84 80 92 96
- Adressse :
- 11 rue de Courtalin
77700 Magny-le-Hongre, France
