Maison neuve à
Orgerus
(78910) Référence :
TD2420243_7
Prix du projet : Maison avec Terrain
prix 470 360 €
- 8 pièces
- 5 chambres
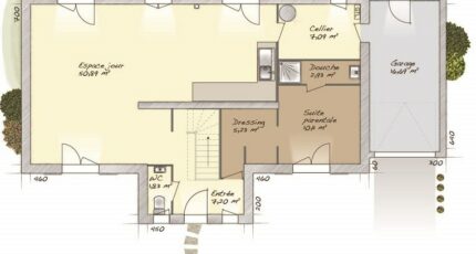
- Surface maison 145 m2
Maison T8 (145 m²) en vente à Orgerus
IDÉALEMENT SITUÉE - MAISON 8 PIÈCES NEUVE
En vente : proche du Transilien N (gare d'Orgerus-Béhoust, 45 min de Paris), nous sommes ravis de vous proposer cette maison de 8 pièces de 145 m² idéalement située dans Orgerus (78910).
Cette maison possède 2 niveaux. Elle offre cinq chambres, une cuisine et trois salles de bains. La maison est neuve.
Le terrain du bien est de 403 m².
Cette maison se situe dans un secteur recherché. Il y a l'École Maternelle Champ de la Poussinière, l'École Élémentaire du Pré du Bourg et le Collège Georges Pompidou à moins de 10 minutes à pied. On trouve une bibliothèque, un tennis, deux boulangeries, deux commerces, un supermarché, une épicerie et une boucherie-charcuterie à quelques minutes.
Son prix de vente est de 470 360 €.
Contactez Thibault DUTEURTRE (tél : 06-23-41-73-81) pour toute information sur la maison ou sur les modalités de vente.
Annonce proposée par un Agent Commercial Partenaire.
Mentions légales
Terrain proposé par un partenaire foncier selon disponibilités et autorisation de publicité au prix de 142 000 €. Hors droit d'enregistrement et frais de notaire. Terrain + Maison proposés au prix de 328 360 € (Hors branchements et raccordements, papiers peints, peintures, revêtement de sol dans les chambres. Tarif modifiable sans préavis). Etiquette énergie : A. Différents modèles disponibles pour ce terrain. Assurances et garanties du constructeur (RC professionnelle, décennale, dommage ouvrage, garantie de remboursement de l'acompte, livraison à prix et délai convenu) : https://www.maisons-balency.fr/informations-legales/. HEXAOM Services est enregistré auprès de l'ORIAS en tant que Courtier en financement, Niveau 1, sous le numéro 14001345.Agence Maisons Balency de Array (Array)
- Téléphone :
- 01 34 61 42 59
- Adressse :
- Domexpo Ouest
Array Array, France
