Maison neuve à
Parville (27180) Référence : SEMA9031_4

Prix du projet : Maison avec Terrain

prix 214 000 €

  • 6 pièces
  • 4 chambres
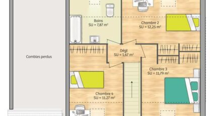
  • Surface maison 89 m2

Maison F6 (89 m²) en vente à Parville
MAISON 6 PIÈCES NEUVE - PROCHE D'ÉVREUX
À vendre : située à deux pas d'Évreux, nous sommes heureux de vous présenter cette maison de 6 pièces de 89 m² à Parville (27180). Son intérieur se divise en quatre chambres, une cuisine et une salle de bains.
Le terrain de cette maison s'étend sur 600 m².
Cette maison comporte 2 niveaux. Elle est neuve.
Niveau transports en commun, il y a deux gares (Évreux Normandie et La Bonneville-sur-Iton) à moins de 10 minutes en voiture. La nationale N13 est accessible à 1 km. On trouve un commerce à proximité.
Elle est à vendre pour la somme de 214 000 €.
Contactez Sébastien MASSON (06-23-38-14-17) pour toute question sur la maison, sur les modalités de vente ou sur les démarches à suivre.

Annonce proposée par un Agent Commercial Partenaire.

Mentions légales

Terrain proposé par un partenaire foncier selon disponibilités et autorisation de publicité au prix de 59 000 €. Hors droit d'enregistrement et frais de notaire. Maison proposée, avec un contrat de construction de maison individuelle, dans le cadre de la loi du 19/12/1990, au prix de 155 000 € (Hors branchements et raccordements, papiers peints, peintures, revêtement de sol dans les chambres, qui sont chiffrés dans les travaux qui restent à charge du client. Tarif modifiable sans préavis). Étiquette énergie : A. Différents modèles disponibles pour ce terrain. Assurances et garanties du constructeur comprises (RC professionnelle, décennale, dommage ouvrage).

Contactez l'agence de Boos

02 35 80 66 66

    * Champs obligatoires

    Vos informations sont traitées par HEXAOM et transmises à un conseiller commercial qui vous contactera afin de répondre à votre demande. Les plans et images présentés sur notre site sont la propriété d’HEXAOM et ne peuvent pas être reproduits sans son accord. Pour retrouver notre politique de protection des données personnelles et exercer vos droits conformément à la « loi informatique et liberté » cliquez-ici.